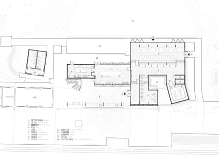
Located in Danjingshan Town, Pengzhou, Sichuan, the Jianjiang Mini-Train Linear Park is a comprehensive tourism route centered around a railway route. It organically integrates dining, exhibitions, family activities, art, outdoor sports, heritage revitalization, and natural landscapes. Its predecessor was the Pengbai Railway, a line that carries the deep collective memories of the Pengzhou people. Opened in 1961, this 39-kilometer narrow-gauge railway once wound through the mountains, serving as a vital corridor for residents traveling for work, education, and local markets. Although the line was decommissioned and dismantled around 2000, it has remained an irreplaceable emotional bond for the local community. In 2017, the Pengzhou Government restored a 3.5-kilometer section of the track in Danjingshan to create the Jianjiang Mini-Train cultural tourism route. However, due to the pandemic and operational challenges, services were suspended once again in 2022.
In 2024, driven by the philosophy of "Operations-First," the operations team Jiulong Xinchuang collaborated with UN-GROUP to launch the Pengbai Railway Revival Plan, marking the rebirth of the Jianjiang Mini-Train Linear Park. We introduced the "host-guest sharing" concept titled "Time Folded · Rebirth on Tracks." This initiative utilizes the 3.5-kilometer railway to link five stations and four themed landscape sections, while integrating thirteen project nodes throughout Danjingshan Town. The mini-train acts as a "time capsule," leading visitors through a montage of memories. Currently, three of the five major stations have taken shape, and the entire line is expected to be fully connected and operational by the spring or summer of 2026.
As the inaugural stop of the linear park, Pengpeng’er Bistro sits adjacent to a landmark of the Pengbai Railway—the Guankou Old Station, built in 1961.
Guided by the philosophy of "New Life for the Old Station," the bistro recreates the leisurely lifestyle quintessential to Chengdu—"gathering a few friends to drink tea under a shed." By blending tea and coffee culture, craft beer, BBQ, and Sichuan-style Western cuisine, it injects fresh vitality into this historical landmark.The working people of the West Sichuan Plain have a long-standing tradition of building "Pengpeng’er" (temporary sheds).
The working people of the West Sichuan Plain have a long-standing tradition of building "Pengpeng’er" (temporary sheds). Embracing this regional characteristic and the theme of "New Life for the Old Station," the design intentionally sets back a quarter of the red-line area. An inclined, semi-outdoor canopy—matching the height of the original structure—extends alongside the Guankou Old Station. This space serves a dual purpose as both a waiting area for the train and the core of the bistro. To bridge the gap between eras, a lightweight steel staircase connects the new canopy to the rooftop terrace of the old station without disturbing the historic fabric. This clever integration transforms the historical space into an organic extension of the bistro.
To create a "Pengpeng’er" that is both light and transparent, the main structure utilizes a steel frame. Beneath the canopy, the steel columns lean naturally to meet the upward-sweeping roof beams at a precise 90-degree angle. This allows the structure to "take root" on the platform with a sense of delicate firmness, achieving a seamless balance between structural strength and aesthetic grace.
The purlin system supporting the tiles of the semi-outdoor "Pengpeng’er" is left intentionally exposed, creating a unique visual texture overhead. Transparent tiles are interspersed randomly among traditional slate tiles; by day, sunlight filters through, casting a dappled pattern of light. By night, tiny recessed floor lamps emit a soft glow, resembling starlight scattered across the ground. The result is a romantic transition between day and night.
On the platform in front of the bistro stood two original plane trees. The "Pengpeng’er" canopy was initially designed with roof openings to accommodate them. However, during excavation, it was discovered that the root systems were hollowed out; combined with long-term exposure during construction, their health suffered an irreversible decline. Consequently, the two plane trees were transplanted to a more suitable environment within the park, and two mature Goldenrain trees (Koelreuteria paniculata) were planted in their original spots. Now, their branches break through the canopy roof, with their treetops gazing toward the distant Longmen Mountains. They have become an integral, living part of the architecture, continuing to grow alongside it.
The space beneath the canopy is designed for flexibility and multifunctionality. A cast-in-place fair-faced concrete bar, featuring a distinct wood-grain texture, softens the inherent coldness of the material. A suspended long bar table, anchored to the leaning columns, serves as both a resting spot for passengers waiting for the train and an ideal nook for friends to enjoy a drink. Meanwhile, a pair of swings installed beside the old station has already become a beloved play corner for local residents.
The 10-meter-long central cast-in-place bar serves as both a functional and visual centerpiece, simultaneously catering to the train platform, the park in the rear, and the indoor dining area. In terms of architectural language, it remains independent of the main roof, featuring a translucent PC (polycarbonate) board roof embedded within a dark grey steel structure. At night, it glows like a lantern, diffusing a warm radiance that radiates the comforting ambiance of "daily life and hearth" to the surroundings.
The original 1.2-meter elevation change of the site is resolved through three tiers of terraced platforms, where the lowest level doubles as a seating area for relaxation. The leaning column system extends into the interior, where the single-pitch roofs follow the natural undulations of the terrain. By echoing the cascading layers of the topography, the roof design ensures a comfortable 3.2-meter clear height while establishing a rhythmic spatial sequence.
With the central bar and courtyard serving as the boundary, the single-pitch roofs on either side form a V-shape. This configuration not only facilitates efficient drainage but also channels the architectural "momentum" (potential energy) toward the core bar area.
The facade consists primarily of expansive glass panels, maximizing the bistro's transparency and openness. To achieve a visually ultra-thin roofline, all HVAC (heating, ventilation, and air conditioning) equipment is pre-installed beneath the floor. Against a base palette of dark grey steel and concrete, the interior makes extensive use of warm reclaimed wood, rattan weaving, and solid wood furniture. Inspired by the traditional bamboo-woven chairs of old Chengdu, these elements reshape local memories of leisure. The ceilings and skirtings are unified in beech wood, with the aluminum window frames of the curtain wall color-matched to create a seamless aesthetic.
During favorable seasons, the entire folding doorThe triangular green space at the rear of the bistro has been planned as a family water-play park. system can be fully retracted, seamlessly integrating the indoor and outdoor environments. Additionally, we have incorporated multiple levels of outdoor terraces, providing dedicated spaces for open-air dining and relaxation.
Greenery is systematically integrated into the architecture: the courtyard between the craft beer area and the private dining rooms serves as a tranquil garden. Above the leaning columns, the canopy is designed with continuous planters where foliage drapes down, allowing "grass to grow beneath the shed."
Within the indoor booth seating area, continuous planters are embedded, complemented by suspended metal mesh racks above for hanging plants. Together, they form a "3D Green Window" that evolves with the plants' natural growth. Even the dining table in the private room is surrounded by a ring of large-leaf plants, further blurring the boundary between the interior and nature.
Details throughout the project pay homage to the industrial heritage of the site. The platform railings and door handles are crafted from small-gauge steel rails, while the steps leading to the private rooms repurpose vintage wooden sleepers (railway ties). Their warm texture and weathered traces awaken long-dormant historical memories. Inside the bistro, the booth seating on one side features an embedded track system, allowing chairs to move flexibly according to functional needs, thereby enhancing the spatial adaptability of the interior.
The project encountered numerous challenges during the construction phase, most notably the cast-in-place process of the central grand bar. To ensure the final aesthetic, the design team led several experimental pours on-site. By repeatedly comparing the results of different material ratios and wooden formwork systems, they eventually arrived at the optimal solution. One of these concrete bar mock-ups was intentionally preserved as a unique landscape feature within the park, serving as a silent witness to the complete journey from experiment to realization.
Now that the mini-train has entered its trial operation phase, Pengpeng’er Bistro has transcended its singular function as a railway station, evolving into a "community living room" and a cherished daily hub for local residents. It has not only successfully revitalized a historical site but has also become a vibrant bond connecting past and present, tourists and locals, and nature and architecture. In doing so, it pens a vivid prologue to the comprehensive revival of the Jianjiang Mini-Train Linear Park.
.jpg?w=450&q=75&dpl=dpl_76Rq87wxQwFvSi96M2iBpo5TN6QL)
.jpg?w=450&q=75&dpl=dpl_76Rq87wxQwFvSi96M2iBpo5TN6QL)
.jpg?w=450&q=75&dpl=dpl_76Rq87wxQwFvSi96M2iBpo5TN6QL)
.jpg?w=450&q=75&dpl=dpl_76Rq87wxQwFvSi96M2iBpo5TN6QL)
.jpg?w=450&q=75&dpl=dpl_76Rq87wxQwFvSi96M2iBpo5TN6QL)
.jpg?w=450&q=75&dpl=dpl_76Rq87wxQwFvSi96M2iBpo5TN6QL)
.jpg?w=450&q=75&dpl=dpl_76Rq87wxQwFvSi96M2iBpo5TN6QL)
.jpg?w=450&q=75&dpl=dpl_76Rq87wxQwFvSi96M2iBpo5TN6QL)
.jpg?w=450&q=75&dpl=dpl_76Rq87wxQwFvSi96M2iBpo5TN6QL)
.jpg?w=450&q=75&dpl=dpl_76Rq87wxQwFvSi96M2iBpo5TN6QL)
.jpg?w=450&q=75&dpl=dpl_76Rq87wxQwFvSi96M2iBpo5TN6QL)
.jpg?w=450&q=75&dpl=dpl_76Rq87wxQwFvSi96M2iBpo5TN6QL)
.jpg?w=450&q=75&dpl=dpl_76Rq87wxQwFvSi96M2iBpo5TN6QL)
.jpg?w=450&q=75&dpl=dpl_76Rq87wxQwFvSi96M2iBpo5TN6QL)
.jpg?w=450&q=75&dpl=dpl_76Rq87wxQwFvSi96M2iBpo5TN6QL)
.jpg?w=450&q=75&dpl=dpl_76Rq87wxQwFvSi96M2iBpo5TN6QL)
.jpg?w=450&q=75&dpl=dpl_76Rq87wxQwFvSi96M2iBpo5TN6QL)
.jpg?w=450&q=75&dpl=dpl_76Rq87wxQwFvSi96M2iBpo5TN6QL)
.jpg?w=450&q=75&dpl=dpl_76Rq87wxQwFvSi96M2iBpo5TN6QL)
.jpg?w=450&q=75&dpl=dpl_76Rq87wxQwFvSi96M2iBpo5TN6QL)
.jpg?w=450&q=75&dpl=dpl_76Rq87wxQwFvSi96M2iBpo5TN6QL)
.jpg?w=450&q=75&dpl=dpl_76Rq87wxQwFvSi96M2iBpo5TN6QL)
.jpg?w=450&q=75&dpl=dpl_76Rq87wxQwFvSi96M2iBpo5TN6QL)
.jpg?w=450&q=75&dpl=dpl_76Rq87wxQwFvSi96M2iBpo5TN6QL)
.jpg?w=450&q=75&dpl=dpl_76Rq87wxQwFvSi96M2iBpo5TN6QL)
.jpg?w=450&q=75&dpl=dpl_76Rq87wxQwFvSi96M2iBpo5TN6QL)
.jpg?w=450&q=75&dpl=dpl_76Rq87wxQwFvSi96M2iBpo5TN6QL)
.jpg?w=450&q=75&dpl=dpl_76Rq87wxQwFvSi96M2iBpo5TN6QL)
.jpg?w=450&q=75&dpl=dpl_76Rq87wxQwFvSi96M2iBpo5TN6QL)
.jpg?w=450&q=75&dpl=dpl_76Rq87wxQwFvSi96M2iBpo5TN6QL)
.jpg?w=450&q=75&dpl=dpl_76Rq87wxQwFvSi96M2iBpo5TN6QL)
.jpg?w=450&q=75&dpl=dpl_76Rq87wxQwFvSi96M2iBpo5TN6QL)
.jpg?w=450&q=75&dpl=dpl_76Rq87wxQwFvSi96M2iBpo5TN6QL)
.jpg?w=450&q=75&dpl=dpl_76Rq87wxQwFvSi96M2iBpo5TN6QL)
.jpg?w=450&q=75&dpl=dpl_76Rq87wxQwFvSi96M2iBpo5TN6QL)
.jpg?w=450&q=75&dpl=dpl_76Rq87wxQwFvSi96M2iBpo5TN6QL)
.jpg?w=450&q=75&dpl=dpl_76Rq87wxQwFvSi96M2iBpo5TN6QL)
.jpg?w=450&q=75&dpl=dpl_76Rq87wxQwFvSi96M2iBpo5TN6QL)
.jpg?w=450&q=75&dpl=dpl_76Rq87wxQwFvSi96M2iBpo5TN6QL)
.jpg?w=450&q=75&dpl=dpl_76Rq87wxQwFvSi96M2iBpo5TN6QL)
.jpg?w=450&q=75&dpl=dpl_76Rq87wxQwFvSi96M2iBpo5TN6QL)
.jpg?w=450&q=75&dpl=dpl_76Rq87wxQwFvSi96M2iBpo5TN6QL)
.jpg?w=450&q=75&dpl=dpl_76Rq87wxQwFvSi96M2iBpo5TN6QL)
.jpg?w=450&q=75&dpl=dpl_76Rq87wxQwFvSi96M2iBpo5TN6QL)
.jpg?w=450&q=75&dpl=dpl_76Rq87wxQwFvSi96M2iBpo5TN6QL)
.jpg?w=450&q=75&dpl=dpl_76Rq87wxQwFvSi96M2iBpo5TN6QL)
.jpg?w=450&q=75&dpl=dpl_76Rq87wxQwFvSi96M2iBpo5TN6QL)
.jpg?w=450&q=75&dpl=dpl_76Rq87wxQwFvSi96M2iBpo5TN6QL)
.jpg?w=450&q=75&dpl=dpl_76Rq87wxQwFvSi96M2iBpo5TN6QL)
.jpg?w=450&q=75&dpl=dpl_76Rq87wxQwFvSi96M2iBpo5TN6QL)
.jpg?w=450&q=75&dpl=dpl_76Rq87wxQwFvSi96M2iBpo5TN6QL)
.jpg?w=450&q=75&dpl=dpl_76Rq87wxQwFvSi96M2iBpo5TN6QL)
.jpg?w=450&q=75&dpl=dpl_76Rq87wxQwFvSi96M2iBpo5TN6QL)
.jpg?w=450&q=75&dpl=dpl_76Rq87wxQwFvSi96M2iBpo5TN6QL)
.jpg?w=450&q=75&dpl=dpl_76Rq87wxQwFvSi96M2iBpo5TN6QL)
.jpg?w=450&q=75&dpl=dpl_76Rq87wxQwFvSi96M2iBpo5TN6QL)
.jpg?w=450&q=75&dpl=dpl_76Rq87wxQwFvSi96M2iBpo5TN6QL)