Alvim Kindergarten is located in the Alvim district of Sarpsborg, Norway – a neighborhood characterized by social challenges, with many low-income families and limited childcare options. The project consists of a two-storey extension and remodeling of the existing 1970s building. Despite tight budgets and a compressed schedule, the kindergarten was completed in just one year, from site acquisition to opening day, in time for the start of the school year.
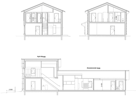
The new volume is offset from the existing structure, both as a deliberate design gesture and a pragmatic response to site boundaries. While the old building is a single storey, the extension rises to two floors, clearly marking the addition as a distinct volume. The surrounding neighborhood is dominated by white timber houses, and the extension responds by establishing its own identity: clad in vertical timber boards, painted in a traditional barn red. The color choice allows the kindergarten to stand out as a public building, while still resonating with the cultural memory of red barns and white houses in Norwegian rural landscapes.
The roof is covered in red clay tiles, in line with local planning regulations, but in a flat variant that gives the building a contemporary expression. On the gable, a timber trellis was added – not required by function, but as an extra layer of generosity. Designed to support climbing plants, the trellis will gradually turn the façade into a living surface, changing with the seasons.
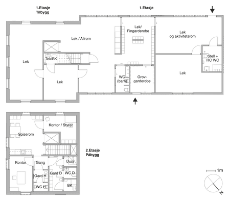
Inside, the project maximizes play areas through compact planning and careful detailing. Large windows with low sills allow children to engage visually with the outside. Walls are kept in muted gray tones, providing a calm background for a colorful daily life filled with drawings, toys, and activity. The central playroom opens to a higher ceiling through exposed structure, creating spatial variety and daylight. Acoustic ceilings with integrated lighting ensure a good sound environment throughout.The second floor houses staff facilities, while a lift platform provides accessibility to meeting rooms for parents and visitors.
The outdoor areas were reorganized to improve safety and quality. Drop-off and pick-up now take place along the street without reversing into traffic, while the main playground was moved to the quiet side of the site, away from the nearby highway. Sand pits and climbing frames are now located in a calmer, safer environment, strengthening the kindergarten’s role as a secure everyday setting for children.
Though modest in scale, the project represents an important upgrade for the neighborhood, where the need for childcare is high. Within strict budgetary and regulatory constraints, the design creates a robust yet distinctive architecture – one that balances efficiency, identity, and generosity. Alvim Kindergarten demonstrates how even small, low-cost buildings can carry significant social meaning, and how precise architectural choices can enhance both place and community.


















