Winners of a national competition launched after a lightning strike decimated a large portion of Kamegaike Hot Springs, local architectural firm Yano Aoyama proposed a low-key rehabilitation, packed with imaginative solutions.
Located in the town of Ikata (Ehime Prefecture) Kamegaike district, like many outlying areas in Japan, faces distinct economic and population decline. The revamped hot-spring facility, built over remnants of former foundations, aims to become a revitalization engine for the region.
Local Commitments
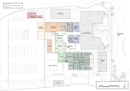
Participatory design processes (involving local high-school and university students) led to the implementation of a multifaceted space, where locals are able to shop for groceries, eat, relax or exchange with visitors, presented with a revamped accommodation facility.
Hosting these new activities, a myriad of cloistered spaces disseminate over the main bath building -preserved by the fire- with the aim of becoming a regional socio-economic magnet.
Wood is the material of choice at the remodeled Kamegaike Onsen. Ehime being a region rich in forestry, the vast majority of timber is outsourced from adjacent areas. Local craftsmen carved out and burnt cedar trees (yakisugi) to clad the exterior of a facility that equally acknowledges its surroundings by way of finishings such as aoishi partitions (local greenschists) or kumaishi enclosings (rammed-earth walls, erected out of the building’s site soil).
Environmental commitments
Local sawmills and builders agreed to furnish discarded lumber to feed newly-built firewood furnaces, complementing pre-existing oil-boilers. Together with power generated by purposedly installed solar-panels, clean energy surged to 76% per cent of total energy necessary to run the facility.
As part of the reconstruction efforts, a lighting-rod was installed within the grounds to prevent further damaging from thunderstorms.
Preservation of the existing foundations defined the structural approach, characterized by a lightweight timber grid, sustained by GLT horizontal elements and 105x105mm slender columns. The ascending-beam roof (nobori-bari) spreads uninterrupted over the central areas of the complex, where 2.20m high earthen walls conceal installations and distribute circulation.
Ehime-based Yano Aoyama used their proximity to the site to transcend the initial scope of the competition guidelines, bringing-in ecologically sound ideas or local stakeholders into the design and management processes. All this with the intention of anchoring the onsen facility to its location for future generations.

.jpg?w=450&q=75&dpl=dpl_6NKhQbYoNKZ4YGsW1tKTDHjTc7uH)
.jpg?w=450&q=75&dpl=dpl_6NKhQbYoNKZ4YGsW1tKTDHjTc7uH)
.jpg?w=450&q=75&dpl=dpl_6NKhQbYoNKZ4YGsW1tKTDHjTc7uH)
.jpg?w=450&q=75&dpl=dpl_6NKhQbYoNKZ4YGsW1tKTDHjTc7uH)
.jpg?w=450&q=75&dpl=dpl_6NKhQbYoNKZ4YGsW1tKTDHjTc7uH)
.jpg?w=450&q=75&dpl=dpl_6NKhQbYoNKZ4YGsW1tKTDHjTc7uH)
.jpg?w=450&q=75&dpl=dpl_6NKhQbYoNKZ4YGsW1tKTDHjTc7uH)
.jpg?w=450&q=75&dpl=dpl_6NKhQbYoNKZ4YGsW1tKTDHjTc7uH)
.jpg?w=450&q=75&dpl=dpl_6NKhQbYoNKZ4YGsW1tKTDHjTc7uH)
.jpg?w=450&q=75&dpl=dpl_6NKhQbYoNKZ4YGsW1tKTDHjTc7uH)
.jpg?w=450&q=75&dpl=dpl_6NKhQbYoNKZ4YGsW1tKTDHjTc7uH)
.jpg?w=450&q=75&dpl=dpl_6NKhQbYoNKZ4YGsW1tKTDHjTc7uH)
.jpg?w=450&q=75&dpl=dpl_6NKhQbYoNKZ4YGsW1tKTDHjTc7uH)
.jpg?w=450&q=75&dpl=dpl_6NKhQbYoNKZ4YGsW1tKTDHjTc7uH)
.jpg?w=450&q=75&dpl=dpl_6NKhQbYoNKZ4YGsW1tKTDHjTc7uH)
.jpg?w=450&q=75&dpl=dpl_6NKhQbYoNKZ4YGsW1tKTDHjTc7uH)
.jpg?w=450&q=75&dpl=dpl_6NKhQbYoNKZ4YGsW1tKTDHjTc7uH)
.jpg?w=450&q=75&dpl=dpl_6NKhQbYoNKZ4YGsW1tKTDHjTc7uH)
.jpg?w=450&q=75&dpl=dpl_6NKhQbYoNKZ4YGsW1tKTDHjTc7uH)
.jpg?w=450&q=75&dpl=dpl_6NKhQbYoNKZ4YGsW1tKTDHjTc7uH)
.jpg?w=450&q=75&dpl=dpl_6NKhQbYoNKZ4YGsW1tKTDHjTc7uH)
.jpg?w=450&q=75&dpl=dpl_6NKhQbYoNKZ4YGsW1tKTDHjTc7uH)
.jpg?w=450&q=75&dpl=dpl_6NKhQbYoNKZ4YGsW1tKTDHjTc7uH)
.jpg?w=450&q=75&dpl=dpl_6NKhQbYoNKZ4YGsW1tKTDHjTc7uH)
.jpg?w=450&q=75&dpl=dpl_6NKhQbYoNKZ4YGsW1tKTDHjTc7uH)
.jpg?w=450&q=75&dpl=dpl_6NKhQbYoNKZ4YGsW1tKTDHjTc7uH)
.jpg?w=450&q=75&dpl=dpl_6NKhQbYoNKZ4YGsW1tKTDHjTc7uH)
.jpg?w=450&q=75&dpl=dpl_6NKhQbYoNKZ4YGsW1tKTDHjTc7uH)
.jpg?w=450&q=75&dpl=dpl_6NKhQbYoNKZ4YGsW1tKTDHjTc7uH)
.jpg?w=450&q=75&dpl=dpl_6NKhQbYoNKZ4YGsW1tKTDHjTc7uH)
.jpg?w=450&q=75&dpl=dpl_6NKhQbYoNKZ4YGsW1tKTDHjTc7uH)
.jpg?w=450&q=75&dpl=dpl_6NKhQbYoNKZ4YGsW1tKTDHjTc7uH)
.jpg?w=450&q=75&dpl=dpl_6NKhQbYoNKZ4YGsW1tKTDHjTc7uH)
.jpg?w=450&q=75&dpl=dpl_6NKhQbYoNKZ4YGsW1tKTDHjTc7uH)
.jpg?w=450&q=75&dpl=dpl_6NKhQbYoNKZ4YGsW1tKTDHjTc7uH)
.jpg?w=450&q=75&dpl=dpl_6NKhQbYoNKZ4YGsW1tKTDHjTc7uH)
.jpg?w=450&q=75&dpl=dpl_6NKhQbYoNKZ4YGsW1tKTDHjTc7uH)
.jpg?w=450&q=75&dpl=dpl_6NKhQbYoNKZ4YGsW1tKTDHjTc7uH)
.jpg?w=450&q=75&dpl=dpl_6NKhQbYoNKZ4YGsW1tKTDHjTc7uH)
.jpg?w=450&q=75&dpl=dpl_6NKhQbYoNKZ4YGsW1tKTDHjTc7uH)
.jpg?w=450&q=75&dpl=dpl_6NKhQbYoNKZ4YGsW1tKTDHjTc7uH)
.jpg?w=450&q=75&dpl=dpl_6NKhQbYoNKZ4YGsW1tKTDHjTc7uH)
.jpg?w=450&q=75&dpl=dpl_6NKhQbYoNKZ4YGsW1tKTDHjTc7uH)
.jpg?w=450&q=75&dpl=dpl_6NKhQbYoNKZ4YGsW1tKTDHjTc7uH)





