Lupita, now a Lisbon staple known for its high volume, authentic Neapolitan pizza, has unveiled its latest architectural project. Following the success of their intimate, original location in Cais do Sodre (also designed by XXXI.studio), the new space in Alvalade transcends traditional restaurant layouts, whilst ita transforming the act of pizza-making into an honest, and compelling performance.
XXXI.studio prioritises preservation and adaptability by focusing on either preservation of original features or, when absent, inventing the magic of pre existing beauty. This commitment supports ecological goals, ensuring flexible architecture that could host successive businesses without structural changes, instead each owner's identity is defined solely by moveable objects.
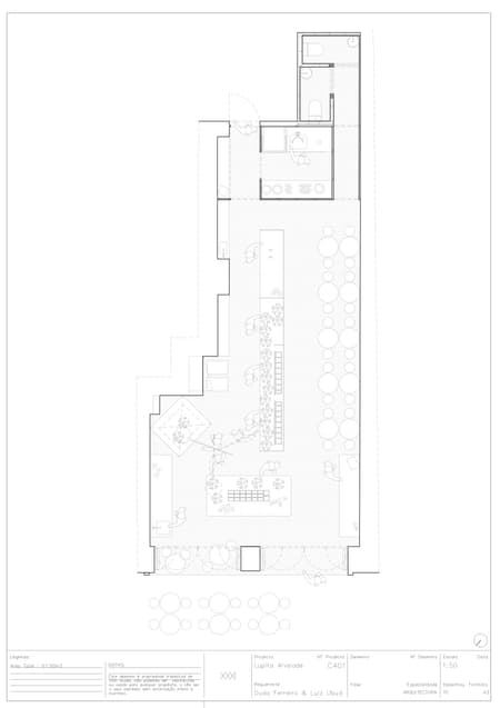
Driven by the need to support immense production demands, the design brief was singularly focused on operations. The environment was constructed to facilitate workflow, ensuring the space could manage the high volume required for both dine-in and takeaway. This focus was further refined after the client acquired a neighbouring shop, establishing a dedicated 'factory' for pre-production and storage, allowing the main space to be devoted entirely to a customer-facing experience.
Internally, the design employs a strategy of deliberate simplicity. Despite significant technical challenges, the space presents a stripped-down room where stainless steel production counters are strategically placed for function. There is minimal seating inside, stainless steel tables and stools are placed on the curb. This enables a totally open conversation with the customer, where the entire process of pizza-making is visible.
On a street of conventional commercial spaces, Lupita’s design is a deliberate anomaly. The exterior features a fully open façade, a strategic choice that bypasses conventional commercial signage to achieve maximum street-level visibility. The studio’s classical principle to open all spaces as much as possible culminated in a restaurant that is completely open to the street. “When you walk by, it's like the rest of the street has stores and then this is a theatre,” Carlos Aragão, co-founder XXXI.studio.
This transparency cements the project as a case study in how design can enhance operational flow and build an authentic brand narrative.




























