Bi-cultural spirit: The convention center that turned its back on the typical ‘big box’ - In a plane flying over the broad Rakaia River on the approach to Christchurch, Woods Bagot architect Bruno Mendes was struck by an idea. It was 2014 and Mendes was traveling to a workshop early in the design of the building. Seizing the opportunity to photograph the distinctive braided riverbed seeded a prescient and crucial design idea.
Celebrating and reflecting the region’s multi-cultural heritage, the completed Te Pae holds its own as a piece of civic architecture in the ongoing re-mending of the city. Its design embeds craft, cultural meaning, and—critically—a sensitivity to the place of Ngāi Tahu / Ngāi Tuahuriri. Puamiria Parata-Goodall is a descendant of these people and advised Mendes and his team on the cultural values and narratives in the design process. “The ancestral bones of the Ngāi Tahu people are in this land. Across the rebuilt city, the new Ōtautahi (Christchurch) reflects both its Ngāi Tahu and European history. Māori language, art, and stories are recognized and celebrated like they haven’t been before,” Parata-Goodall says.
Parata-Goodall says Christchurch is becoming a city of conversations that didn’t happen before the disaster. Standing in front of Te Pae, Parata-Goodall asks a passer-by: “Can you see the braided rivers? Would you like to hear about the tradition of Aoraki and the formation of the South Island, the story of the formation of our waterways and our lakes?” What you see playing out in front of you now, she says, are those narratives. “My ancestors have their voice back again in our landscape.” In a testament to the architects’ local/global design nous and inclusivity, the spectacular Te Pae rewrites the rule book for convention centers, several times over. Unlike conventional convention centers, which tend to be a generic ‘big box’, the building is smaller in scale and wrapped in a fluid façade. Nearly 43,000 façade tiles—in five variations, individually numbered and placed—evoke the expansive river landscapes that formed the Canterbury Plains, and which spoke arrestingly to Mendes in the air that day.
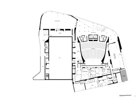
The contoured profile of the building reflects New Zealand’s iconic Southern Alps, another influence in the design central to the Ngāi Tahu origin story. Opting to integrate the facility into the city center, the architects also turned it to face towards the river—a genius move for Christchurch’s new urban sensibility. The main entrance opens to Oxford Terrace and gives visitors easy access to the new waterfront of the Te Papa Ōtākaro /Avon River Precinct. While minimizing the impact of the building’s mass, Te Pae’s design makes it capable of hosting up to 2,000 delegates at a time.
All the ‘big box’ functionality is drawn into the center of the site. Pulling these requirements away from the building’s edges allows it to be wrapped by the flowing façade and pre-function spaces which have fantastic views out to the Ōtākaro Avon River and all-around to Cathedral Square. Many convention centers look and feel like small airports—long corridors, devoid of natural light, crammed with signs, screens, and people. Te Pae is different. Most of the people's movement happens in areas that seem almost organic. The pathways are full of natural light and look out to all sides.
Conventions centers are also regularly unresponsive and unforgiving to their place. Here, the architects approached the design with particular sensitivity to the site. Mendes says stitching Te Pae into the various nuances of the city is vastly important, for local vitality and the delegates attending events, many of whom Te Pae will offer their first experience of Christchurch. “From inside, framed views out curate the site for you. Views from the function room back to Cathedral Square; the opening out onto Victoria Square; the leaning toward the river—these were very specific moves to make the building engage strongly with what’s around it.”
“I think that's what's special about the project,” says Mendes. “You’re connected to Christchurch and it couldn't be anywhere else.” Warren and Mahoney principal Peter Marshall says the facility is a much-needed asset for the city, that reflects the identity of its place. “We feel very proud to have partnered with Ōtākaro, Matapopore Trust, and Woods Bagot on this world-class facility for the people of Christchurch,” says Marshall. “Upon arrival, visitors are greeted with a warm and welcoming experience through the unique storyline that links people and place.”

















