The spring house sits in a river valley, deep in the forests of Wuling Mountain, a branch of the scenic Yanshan Mountains in the northern part of Beijing. The site abuts a steep rock cliff to the west and opens out onto an expansive view of the alluvial plains to the east and the chain of mountains beyond. The site is densely populated with poplar trees and the ground is covered by reeds and grasses, with a stream slowly meandering from north to south through the site. The construction of a new residential community is underway nearby, where people will approach the building by crossing a steel arch bridge over the stream, strolling through the forest, and arrive at the entrance of the spring house.
We envision the building as an apparatus of the steaming hot spring, touching lightly upon the natural slope. To minimize the impact of the building on the original landscape, we raised the main building from the ground. Its volume is supported by 10 columns driven into the earth.
The hot spring functional spaces are vertically layered in the tower on the west side, and the transportation and service program are set in the east core, connected by corridor-like bridge on each floor. The programs are vertically stacked up for reducing the building footprint and as well, creating a series of unique spatial experiences at different levels. As the visitors ascend, new relationships between the surrounding trees, rock cliff, and distant mountain landscape are respectively highlighted.
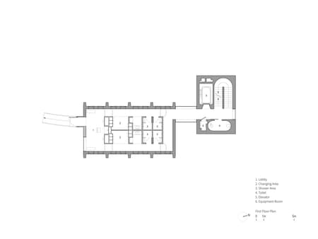
We allocated the main functions on three levels. An integrated teak box anchors the center space of the first floor to accommodate the reception, storage, locker room and showering functions before entering the bath. The second floor is a transparent relaxation lounge enclosed by floor-to-ceiling glass on all sides, located among the most-lush part of the poplar tree canopies. When the weather is favorable, the upper windows can be opened, introducing the fresh natural air, framing splendor natural scenery throughout the seasons.
The third-floor bath pools, at different temperatures and water treatments are distributed under eight light wells. When the skylight passes through the 8-meter-high wells, it becomes soft and quiet, diffused by the bush-hammered concrete. Through strip windows above the water surface on the west facade, people can choose to immerse themselves in the water or have a glimpse of the nearby valley cliffs with the flourishing treetop enveloping the building.

.jpg?w=450&q=75&dpl=dpl_6NKhQbYoNKZ4YGsW1tKTDHjTc7uH)



.jpg?w=450&q=75&dpl=dpl_6NKhQbYoNKZ4YGsW1tKTDHjTc7uH)


.jpg?w=450&q=75&dpl=dpl_6NKhQbYoNKZ4YGsW1tKTDHjTc7uH)























