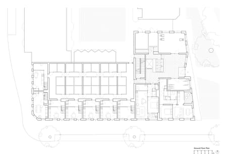
De Hartenrust is a new social housing building on the bend of the River Rotte in Rotterdam. The building consists of tower apartments, townhouses and corner houses. Together they form a versatile sculpture that marks the connection between the densely populated Oude Noorden neighbourhood and the green, liveable riverbanks.
The building contains 36 affordable social housing units, including family homes and apartments. Despite their compact size, all apartments are spacious with sheltered loggias and wide French balconies overlooking the city, while sharing a communal roof garden. The single-family homes have front doors facing the street and roof terraces.
The sturdy, sculptural building is softened by warm and rich materials. The façades are made of robust brickwork with an alternating rhythm of vertical, light-coloured windows and a green glazed brick plinth that matches the surrounding 19th-century neighbourhood.
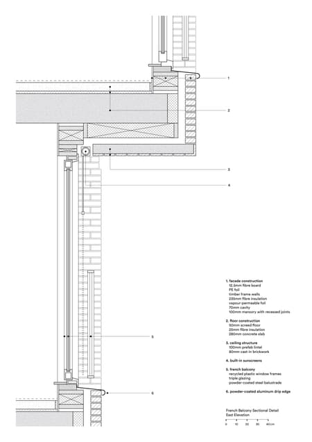
De Hartenrust contributes to a healthy and liveable city by building passive, well insulated, and future-proof homes with natural ventilation and green, water retention roofs.De Hartenrust continues the urban sequence of taller buildings near the bridges over the Rotte. The building consists of three sections and, with its distinctive corners, forms a versatile sculpture on the scale of the street, the neighbourhood, and the city. The nine-storey tower serves as a landmark on the Rotte. The stepped cantilever of the plinth, middle and top interacts subtly and elegantly with the bend in the river. The four-storey corner houses mark the intersection of the streets with a classic stepped chamfer. Between the tower and corner houses, three-storey townhouses on the street accentuate the individual homes.
‘Together with Havensteder Foundation, we have realised a building with a wide variety of homes on a small, complex inner-city site, which makes optimal use of and completes this beautiful location.’ Jago van Bergen, van Bergen Kolpa Architect
De Hartenrust continues the urban sequence of taller buildings near the bridges over the Rotte. The building consists of three sections and, with its distinctive corners, forms a versatile sculpture on the scale of the street, the neighbourhood, and the city. The nine-storey tower serves as a landmark on the Rotte. The stepped cantilever of the plinth, middle and top interacts subtly and elegantly with the bend in the river. The four-storey corner houses mark the intersection of the streets with a classic stepped chamfer. Between the tower and corner houses, three-storey townhouses on the street accentuate the individual homes.
The unique building design and architectural quality enrich the urban structure of the neighbourhood.’ Mattijs van Ruijven, Head of Urban Planning, Municipality of Rotterdam
De Hartenrust celebrates the rich tradition of social housing with a contemporary need for diversity and spatial generosity. The building offers a variety of housing types for its residents, from large family homes to compact apartments. Despite the compactness, the apartments feel very spacious thanks to their corner position with wide French balconies that allow light and air to flow into every room. In the family homes, the kitchen, living room and bedroom span the full width of the home, and the floors are connected by a spacious, open staircase.
‘The clear floor plans make optimal use of the available space. This gives our residents a spacious living area, even with a smaller surface area.’ Ferdi Jeelof, project manager for implementation at Havensteder Housing Association
The building creates spaces for residents to meet each other and is invitingly open to the surrounding area. The double-height entrance hall forms a central, welcoming entrance, with the various facilities and bike parking areas immediately visible. The mezzanine floor lends itself to communal use and activities. In front of the entrance is a small green square with benches by the water. The shared roof terrace, nestled among the treetops, offers space for outdoor activities with panoramic views. The family homes have their front doors and kitchen-diners with large windows facing the street, which activate the pavement and encourage interaction with the neighbourhood.
‘In addition to affordable housing, we are working to create liveable neighbourhoods. De Hartenrust residential building contributes to this by giving residents the space and opportunity to meet each other.’ Christa Uithol, Director of Housing at Havensteder Housing Association.
The sturdy building sculpture is softened by warm and rich materialisation that matches the surrounding 19th-century neighbourhood. The three building sections are finished in nuanced yellow brickwork on a plinth of green glazed bricks. The jointing in two shades of grey creates a subtle difference between the building sections, recessed windows and indentations in the cornice. The light olive-yellow window frames and railings create a calm “ton sur ton” effect with the brickwork in two colours. Brass details for lighting and house numbering give the whole building a rich and authentic character.
‘With De Hartenrust, we offer our residents a residential building with high-quality architecture. Its spacious appearance and beautiful location are exceptional for social housing.’ Marije Bouman, development and acquisition manager at Havenstede
The building contributes to a healthy and liveable city by being future proof. Minimal energy demand is achieved through passive, heat-accumulating and well insulated homes, combined with built-in sun blinds and natural ventilation. Green, water retention terraces and roofs mitigate flooding and drought, improve the living environment, and enhance biodiversity. ‘In addition to smart energy and water solutions, we are able to substantially increase the future-proofing of the building through the use of bio-based inner cavity walls and circular windows and frames.’ Jaap-Jan Smit, Commercial Director of BAM Wonen









































