A los pies del Montgó, en Jávea, se desarrolla un conjunto de viviendas unifamiliares que aborda su implantación desde el respeto al lugar y la precisión formal. El proyecto evita gestos icónicos y prioriza una integración clara en el entorno mediante volúmenes horizontales, proporciones controladas y una ocupación del suelo que preserva la lectura del paisaje.
La montaña actúa como referencia constante en la orientación y en la apertura de las viviendas, mientras que los espacios exteriores privados —jardín y piscina— estructuran la escala doméstica. El proyecto se organiza a partir de esta doble condición: relación directa con un entorno natural de gran presencia y construcción de un ámbito interior protegido y habitable durante todo el año.
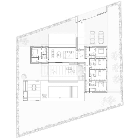
Cada vivienda establece dos frentes complementarios. Hacia el Montgó, las estancias principales se abren con vistas amplias y control solar preciso. Hacia el interior de parcela, los espacios se articulan en torno a áreas resguardadas que garantizan privacidad y confort. Esta estrategia genera una secuencia continua entre exterior e interior, donde los límites se resuelven mediante transiciones espaciales claras y funcionales.
La arquitectura se concibe como un sistema continuo de espacios conectados visual y físicamente con el exterior. Porches, terrazas y grandes huecos correderos amplían las áreas de estar y permiten un uso flexible a lo largo del año. Estos espacios intermedios forman parte de la organización principal de la vivienda y responden a criterios climáticos, de sombra y ventilación cruzada.
La luz natural se gestiona como un material más del proyecto. La orientación, la profundidad de los vuelos y la posición de los huecos regulan la incidencia solar en las distintas estaciones, reduciendo la demanda energética y mejorando el confort interior. La vivienda se adapta así a los ciclos diarios y estacionales desde soluciones pasivas.
El conjunto se define mediante una paleta material reducida y duradera, seleccionada por su comportamiento climático y su adecuación al contexto mediterráneo. Las geometrías horizontales, la presencia de sombra y la relación directa con el espacio exterior retoman principios de la arquitectura local desde criterios actuales de eficiencia, claridad constructiva y racionalidad estructural.
Más que objetos aislados, las viviendas se plantean como dispositivos de mediación entre el paisaje y la vida cotidiana, priorizando equilibrio, durabilidad y calidad espacial.



















































