Project 1374 is located in one of the plotted developments in the north of Bangalore, characterized by well-demarcated plots, spacious roads, and organized infrastructure. Trees flank the wide streets, dividing the plots with dense canopies offering shaded avenues. Abutting the plot stood a cluster of trees- a quiet presence. We borrowed these trees into the design, their presence extending into the home’s narrative.
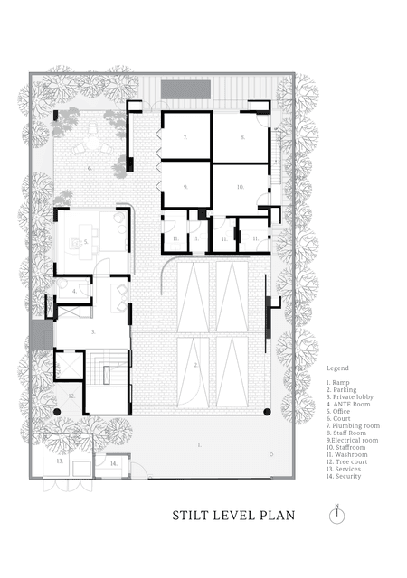
A solid base, almost a monolith, anchors the house to the ground. While floating, upper layers stacked above, wrap and unwrap allowing pockets of green to weave through. The built mass steps back giving precedence to open spaces and breaking away from the rigid boundaries. The home unfolds as a composition of staggered volumes, carefully positioned to carve out built and un-built spaces. Not confined within the walls, each level anchored to its court becomes the heart of shared experiences. Social spaces flow seamlessly at each level, fostering a sense of deep connection, while private spaces are cocooned in quiet seclusion.
Informal yet intimate, this careful orchestration of volumes creates layers that break away from the rigid form, grounding its inhabitants in the presence of nature. The interspaced arrangement of double-height volumes with courts carve out opportunities for circulation threads. Unfolding a journey that reveals framed views, moments of pause and a connection to the borrowed landscape. Staircase unfold in layers, while the corridors open up to courts connecting to the quieter, more intimate zones. While the borrowed landscape becomes an ever-present companion, a rhythm of glimpses and stillness. This interplay not only shapes the spatial experience but also becomes a canvas for light & shadow, unveiling its character in layers.
With the swimming pool and the entertainment zones, the terrace at the uppermost level is planned more like an extension rather than an ending- a place where rhythm continues to unfold. An elevated retreat blending leisure with openness.
Ensuring the home is always in gentle conversation with its surroundings, the greens become a quiet companion in everyday life. Pots, plants and foliage were integral parts of the client’s previous home. Rather than starting anew, we choose to rehome these plants within the new architecture, allowing them to seed the landscape narrative. Their presence softened the transition and offered a sense of continuity bridging the memory with the present.
Paired with rough limestone and gabion cylinders, a meditative threshold and a tranquil pause at the entrance level blurs the boundary between inside-out. The rugged textures anchor the green pockets, adding a sense of stillness while the cascading greens soften these edges.
As one steps in, the materiality sets the tone, revealing its intent. The interplay between raw (tactile surfaces) and greens at the upper courts invites a sensory engagement, gently ushering you into the presence drawing you inward. The cascading greens are free-flowing and introduce a softness which is deeply rooted in the life of the home.

.png?w=450&q=75&dpl=dpl_6NKhQbYoNKZ4YGsW1tKTDHjTc7uH)
.png?w=450&q=75&dpl=dpl_6NKhQbYoNKZ4YGsW1tKTDHjTc7uH)
.png?w=450&q=75&dpl=dpl_6NKhQbYoNKZ4YGsW1tKTDHjTc7uH)
.png?w=450&q=75&dpl=dpl_6NKhQbYoNKZ4YGsW1tKTDHjTc7uH)
.png?w=450&q=75&dpl=dpl_6NKhQbYoNKZ4YGsW1tKTDHjTc7uH)
.png?w=450&q=75&dpl=dpl_6NKhQbYoNKZ4YGsW1tKTDHjTc7uH)
.png?w=450&q=75&dpl=dpl_6NKhQbYoNKZ4YGsW1tKTDHjTc7uH)
.png?w=450&q=75&dpl=dpl_6NKhQbYoNKZ4YGsW1tKTDHjTc7uH)
.png?w=450&q=75&dpl=dpl_6NKhQbYoNKZ4YGsW1tKTDHjTc7uH)
.png?w=450&q=75&dpl=dpl_6NKhQbYoNKZ4YGsW1tKTDHjTc7uH)
.png?w=450&q=75&dpl=dpl_6NKhQbYoNKZ4YGsW1tKTDHjTc7uH)
.png?w=450&q=75&dpl=dpl_6NKhQbYoNKZ4YGsW1tKTDHjTc7uH)
.png?w=450&q=75&dpl=dpl_6NKhQbYoNKZ4YGsW1tKTDHjTc7uH)
.png?w=450&q=75&dpl=dpl_6NKhQbYoNKZ4YGsW1tKTDHjTc7uH)
.png?w=450&q=75&dpl=dpl_6NKhQbYoNKZ4YGsW1tKTDHjTc7uH)
.png?w=450&q=75&dpl=dpl_6NKhQbYoNKZ4YGsW1tKTDHjTc7uH)
.png?w=450&q=75&dpl=dpl_6NKhQbYoNKZ4YGsW1tKTDHjTc7uH)
.png?w=450&q=75&dpl=dpl_6NKhQbYoNKZ4YGsW1tKTDHjTc7uH)




