Within the increasingly compressed coastal urban fabric of Vung Tau, housing today is challenged to re-establish the relationship between people, living space, climate, and traditional values that have gradually faded. Against this backdrop, the project was conceived as a home for a three-generation family, where architecture seeks to foster connection, adapt over time, and sustain long-term quality of living.
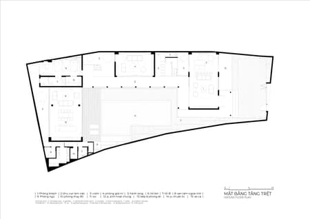
The central concept of the project is derived from a system of five courtyards interwoven throughout the house, where courtyards are no longer treated as secondary or leftover spaces, but as integral living environments. These courtyards create gentle transitional layers between inside and outside, between light and air, stillness and movement, allowing the house to continuously “breathe” through natural ventilation and daylight.
The central courtyard functions as the heart of the house, connecting spatial sequences and family relationships. The architectural language is intentionally restrained, with exposed structure and raw materials emphasized to foreground the lived atmosphere rather than formal expression. Within this framework, the essence of traditional Vietnamese courtyard housing is distilled and reinterpreted to accommodate contemporary lifestyles, placing human experience and sensory perception at the core of architectural design.
The house is approached as a living structure, where spatial quality and atmospheric comfort are prioritized. Space, structure, and material work together to nurture familial bonds and shape an architecture that is enduring, layered, and meaningful over time.




































