In the new urban district of Belvédère in Bordeaux, we're thrilled to unveil the finalized Facette. The design is Studioninedots' response to the request for a place that fosters new ways of working and offers the flexibility, collaboration and diversity essential for today's entrepreneurs. For at a time when work is increasingly untethered from specific times and places, the building's true value lies in its innovative spaces for interaction. Facette boasts a sequence of distinctive collective spaces, leading users from the ground floor, along the facade to the roof terrace. These spaces drive the social community within the building. The building's communal ambition and enticing, multi-purpose spaces set Facette apart as a building that fits today's working needs.
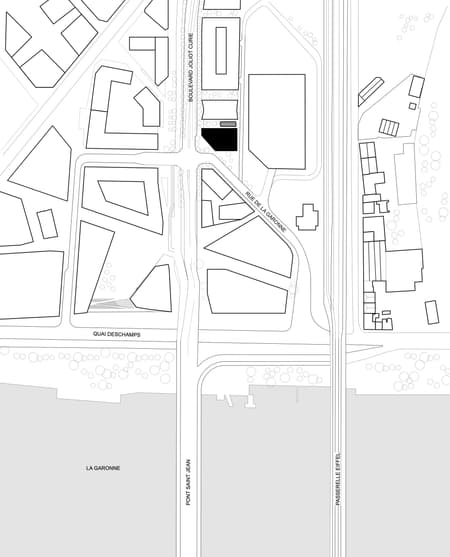
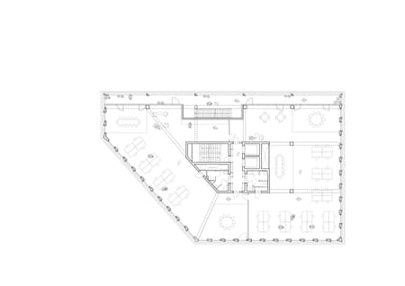
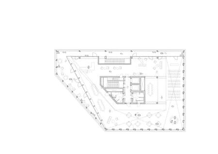
The prime corner location on the central axis of Boulevard Joliot-Curie was the driving force for us to create the most transparent ground floor possible, an open environment where workplace and public space converge. As a result, Facette appears to balance on a slender base, not only leaving as much space as possible for shared activity all around, yet even seeming to draw the public space in. Impressive concrete arches create a strong visual appeal, expressing the creative ambitions of the space. It’s set to become the social heart, a collective, versatile space for work, relaxation and meeting — or as we more often call it, the ‘WeSpace’.
Through expansive glass walls, the ground floor seamlessly extends into the adjacent pocket park, a collective, green area between the buildings that offers a serene retreat from the bustling boulevard. It serves as a gathering spot where Facette occupants and users of the neighboring ARK building can connect.
A vertical garden rises from the park, with green outdoor spaces interconnected by open staircases. Extending across the entire width of the building, this facade offers effective cooling in Bordeaux’s climate and pleasant spaces for interaction and relaxation. The vertical garden opens into a collective top floor with green outdoor spaces and wide views of Bordeaux all around. The green facades and roofs enhance the urban climate by keeping the air cooler and increasing humidity compared to traditional buildings. This design helps mitigate the urban heat island effect, reduce particulate matter and air pollution, and address related health issues. Rainwater is collected on the green roofs and drained through the pocket park.
Flexibility was crucial to ensure the building could adapt to future functions. We opted for a load-bearing, prefabricated facade and repositioned one of the two required staircases to the outside, which allowed us to minimize the core. This approach enabled us to create entirely open floor plans that can be easily reconfigured to meet evolving needs. A grid structure organizes the facades and creates visual cohesion. The window openings expand as they rise, framing the spectacular views. The facades are made with sand-colored pigmented concrete, echoing the spirit of Bordeaux's historic stone architecture.




.jpg?w=450&q=75&dpl=dpl_6NKhQbYoNKZ4YGsW1tKTDHjTc7uH)



















