Mankind Studios is a compact mixed-use building located in a dense urban neighborhood in Bandung, Indonesia. The project occupies a narrow site within a lively hangout district shaped by the city’s strong youth culture and creative economy. Bandung’s high altitude and mountainous surroundings provide a cooler climate than most Indonesian cities, a condition that directly informs the building’s spatial and environmental strategies.
The project accommodates three main programs—food and beverage, fashion retail, and a boutique hotel—within a constrained footprint. Rather than stacking programs in isolation, the design introduces spatial porosity and visual continuity through a split-level organization. This approach allows daylight, natural ventilation, and social interaction to permeate the building vertically.
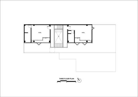
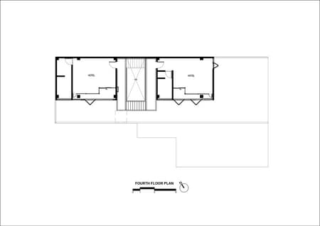
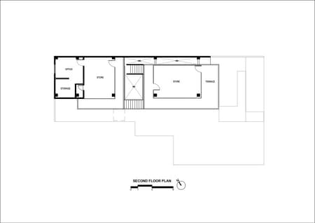
Service functions are located at the basement level, while a restaurant occupies the semi-basement and ground floor. This space also functions as the lobby and check-in area for the boutique hotel above, blurring boundaries between public and semi-private programs. Two floors of fashion retail sit above the restaurant, acting as a transitional layer. The uppermost levels accommodate four boutique hotel rooms oriented toward views of the surrounding neighborhood.
A central void formed by the split-level strategy creates an atrium that becomes the spatial and environmental core of the building. The atrium enhances cross-ventilation and daylighting while visually connecting the different programmatic layers. At ground level, the split floors generate a small tiered seating area that functions as a social gathering space and a spectator zone for live music performances during weekends, reinforcing the building’s role as a neighborhood hub.
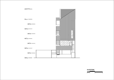
The building responds subtly to its context by following the geometry of the narrow site. A slight axial rotation at the roof level aligns with the direction of Gedung Sate, a prominent historical landmark located northwest of the site. At street level, a public porch extends the building into the pedestrian realm, creating an outdoor hangout area that strengthens its urban presence.
Wooden louvers wrap the façade, giving the building a monolithic yet permeable appearance. Functioning as sun shading—particularly against western exposure—the operable louvers and windows allow each hotel room to achieve cross-ventilation, maximizing thermal comfort while embracing Bandung’s cool mountain breeze.

.jpg?w=450&q=75&dpl=dpl_6NKhQbYoNKZ4YGsW1tKTDHjTc7uH)
.jpg?w=450&q=75&dpl=dpl_6NKhQbYoNKZ4YGsW1tKTDHjTc7uH)
.jpg?w=450&q=75&dpl=dpl_6NKhQbYoNKZ4YGsW1tKTDHjTc7uH)
.jpg?w=450&q=75&dpl=dpl_6NKhQbYoNKZ4YGsW1tKTDHjTc7uH)
.jpg?w=450&q=75&dpl=dpl_6NKhQbYoNKZ4YGsW1tKTDHjTc7uH)
.jpg?w=450&q=75&dpl=dpl_6NKhQbYoNKZ4YGsW1tKTDHjTc7uH)
.jpg?w=450&q=75&dpl=dpl_6NKhQbYoNKZ4YGsW1tKTDHjTc7uH)
.jpg?w=450&q=75&dpl=dpl_6NKhQbYoNKZ4YGsW1tKTDHjTc7uH)
.jpg?w=450&q=75&dpl=dpl_6NKhQbYoNKZ4YGsW1tKTDHjTc7uH)
.jpg?w=450&q=75&dpl=dpl_6NKhQbYoNKZ4YGsW1tKTDHjTc7uH)
.jpg?w=450&q=75&dpl=dpl_6NKhQbYoNKZ4YGsW1tKTDHjTc7uH)
.jpg?w=450&q=75&dpl=dpl_6NKhQbYoNKZ4YGsW1tKTDHjTc7uH)
.jpg?w=450&q=75&dpl=dpl_6NKhQbYoNKZ4YGsW1tKTDHjTc7uH)
.jpg?w=450&q=75&dpl=dpl_6NKhQbYoNKZ4YGsW1tKTDHjTc7uH)
.jpg?w=450&q=75&dpl=dpl_6NKhQbYoNKZ4YGsW1tKTDHjTc7uH)
.jpg?w=450&q=75&dpl=dpl_6NKhQbYoNKZ4YGsW1tKTDHjTc7uH)
.jpg?w=450&q=75&dpl=dpl_6NKhQbYoNKZ4YGsW1tKTDHjTc7uH)
.jpg?w=450&q=75&dpl=dpl_6NKhQbYoNKZ4YGsW1tKTDHjTc7uH)
.jpg?w=450&q=75&dpl=dpl_6NKhQbYoNKZ4YGsW1tKTDHjTc7uH)
.jpg?w=450&q=75&dpl=dpl_6NKhQbYoNKZ4YGsW1tKTDHjTc7uH)
.jpg?w=450&q=75&dpl=dpl_6NKhQbYoNKZ4YGsW1tKTDHjTc7uH)
.jpg?w=450&q=75&dpl=dpl_6NKhQbYoNKZ4YGsW1tKTDHjTc7uH)
.jpg?w=450&q=75&dpl=dpl_6NKhQbYoNKZ4YGsW1tKTDHjTc7uH)
.jpg?w=450&q=75&dpl=dpl_6NKhQbYoNKZ4YGsW1tKTDHjTc7uH)
.jpg?w=450&q=75&dpl=dpl_6NKhQbYoNKZ4YGsW1tKTDHjTc7uH)
.jpg?w=450&q=75&dpl=dpl_6NKhQbYoNKZ4YGsW1tKTDHjTc7uH)
.jpg?w=450&q=75&dpl=dpl_6NKhQbYoNKZ4YGsW1tKTDHjTc7uH)
.jpg?w=450&q=75&dpl=dpl_6NKhQbYoNKZ4YGsW1tKTDHjTc7uH)
.jpg?w=450&q=75&dpl=dpl_6NKhQbYoNKZ4YGsW1tKTDHjTc7uH)
.jpg?w=450&q=75&dpl=dpl_6NKhQbYoNKZ4YGsW1tKTDHjTc7uH)
.jpg?w=450&q=75&dpl=dpl_6NKhQbYoNKZ4YGsW1tKTDHjTc7uH)
.jpg?w=450&q=75&dpl=dpl_6NKhQbYoNKZ4YGsW1tKTDHjTc7uH)




