Brownstone is an architectural style present in New York. These buildings are known by being row and vertical houses with brownstone facades, placed in long and narrow grounds. The project consists on the refurbishment of one of these residences, and, at the same time, seeks to respect the historical character of this architecture and offers a practical, contemporary and technological solution for the sectorization of an extensive program distributed over its six floors.
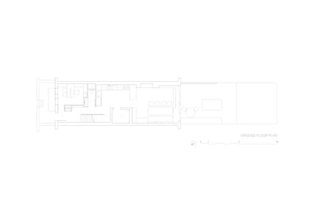
These six levels ended up defining the rooms distribution, always well integrated to make the most out of the restricted entrance of natural lighting - guaranteed only through both facades. On the first floor, there is the kitchen, the office and a backyard with BBQ area. This kitchen, with its black counter and cabinets, differs from the traditional Studio’s light shades. To complement the dark atmosphere, white panels and woodwork brought lightness to the environment.
The second floor is dedicated to social areas - such as the bar, dinner room and living room for the visits. As it was impossible to modify the historical frontal facade, this floor slab was retracted in the back facade in order to offer more space and a new and wide window, connecting first and second floor. To guarantee an intimate space to the family a couple with 2 kids -, the bedrooms, Gym, TV Room, Outdoor fireplace lounge were placed in the 3 upper floors.
The Decor has neutral shades contrasting to the dark facade. The oak flooring of the upper levels brings softness, while Limestone in warm shades and fabrics and furniture in earthy tones make a subtle reference to the Middle East natural colors, the owner’s homeland. The clients asked for a closed carpentry, with clean lines and few decorative objects, valuing a minimalist aspect. The interest in Brazilian identity is noticed by a selection of several furniture - many of them designed by Arthur Casas - and works of art.
The project’s highlight is the Indoor Pool, placed in the underground floor. The natural lighting, guaranteed by a skylight, offers a dramaticity to this ambience, which also divides the space with a warehouse and technical areas. To complement the lighting, lighting coves and linear built-in lights enhances the geometric design of the wooden bench, a strategy replicated throughout the residence.


















































