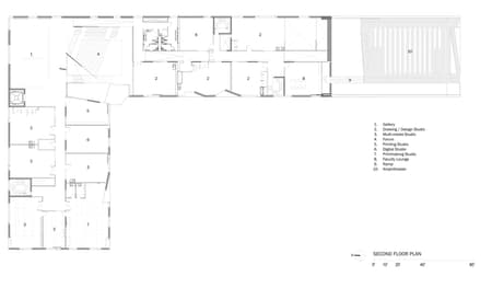
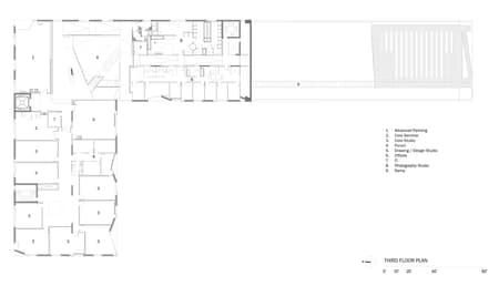
The three-story Glassell School of Art provides state-of-the-art studios and active social spaces within the 93,765-square-foot structure. The BBVA Compass Roof Garden and adjacent Brown Foundation, Inc. Plaza also serve the expanding needs of the school and the unique mix of students of all ages. Sited on two acres, adjoining the Lillie and Hugh Roy Cullen Sculpture Garden designed by Isamu Noguchi, the building replaces the school’s 1979 facility. The enrollment of about 7,000 students is expected to grow to 8,500 with the expanded course offerings of the enlarged facility.
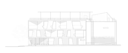
The L-shaped building defines two edges of the plaza. Its sloped, walkable roofline, anchored by a stepped amphitheater, extends the plaza up and along the roof to a garden above. The exterior is constructed from 178 unique precast concrete panels that create a rhythm across the exterior surface as they alternate with 170 glass panes that provide natural light to all studios and classrooms. A three-story, broad-stepped forum activates the center of the school’s interior.















