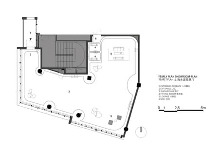
Confronted with an irregular original site, SHISUO returned to the fundamental element of fashion display: the hanging rail. We allowed a "floating rail" to morph in response to the existing walls, columns, and rainwater pipes. It traces the walls, bends to evade columns, and rises to allow passage, absorbing the chaotic nature of the environment and transforming it into a dynamic vitality. the single continuous rail
This floating rail, spanning nearly 100 meters, maximizes the display capacity. It is no longer a display fixture, but an impromptu spatial sketch—a freehand line drawing that outlines the spirit of the space through its winding journey. We intend to express the dualistic relationship between "self" and "other"—illustrating how people, objects, and their environment are not isolated entities, but rather define and reference one another.
The sculptural concrete display stands draw inspiration from the works of artist Eduardo Chillida. Each stand consists of multiple cast-in-place concrete modules interlocked and engaged with one another. They are primitive and heavy, retaining their natural imperfections and textures to serve as visual anchors within the showroom. The weight of the stands creates an extreme and dramatic tension with the lightness of the floating rail.
Hand-dyed timber slats recede into the background, imbuing the showroom with a gallery-like simplicity and emotional warmth, providing the ideal backdrop for the garments. When delicate fabrics are introduced, a silent dialogue emerges between hardness and softness, weight and lightness, the rock-like stands and the flowing textiles.
Scattered throughout the space are several full-height mirrors made of stainless steel. Their surfaces are not singular reflective planes but are deconstructed into a series of staggered geometric facets. These forms resemble the solidified afterimages of a body in motion. They serve as an abstract expression of human dynamics and a metaphor for the fluid beauty of clothing in movement—suggesting that fashion is not merely a static display, but art walking through time.
We had no intention of following conventional commercial fixture practices. Instead, we created collectible, timeless art pieces tailored for the brand. The design fuses architecture, fashion, and contemporary art, marking a return to emotion, warmth, and intellect. Ultimately, it distills a unique aesthetic identity that belongs solely to



























.jpg?w=450&q=75&dpl=dpl_6NKhQbYoNKZ4YGsW1tKTDHjTc7uH)

