Bohumil Coffee opened in Seoul, South Korea, in May 2023. Since the summer of 2024, it has also operated as Bohumil sendagaya in the corner of Schemata Architect's office in Tokyo. Bohumil Coffee in Seoul is located in an old reinforced concrete building in Seongsu, a former factory district that has transformed into a trendy area with cafes, shops, and galleries. However, the building was slated for demolition and reconstruction, and the owner, Mr. Kim, was looking for a place to open a temporary shop while reconstruction was underway.
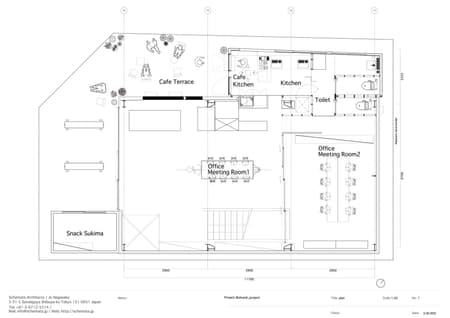
He set his eyes on the office of Schemata Architects, who was in charge of designing the new building in Seongsu. The building of Schemata Architects on the corner site was formerly a stationary wholesaler's warehouse. It has a parking space of about 3.3 m2, and the plan was to convert it into a cafe, including the kitchen that faces the parking space. The Bohumil shop, including the staff, moved here across the sea.
Mr. Kim is the founder of Anthracite, a popular cafe in South Korea. Anthracite represents the third-wave coffee movement, creating stylish spaces by renovating old buildings such as former factories. However, buildings that accommodate trendy tenants in Korea become gentrified, and their prices skyrocket after ten years. Instead of getting caught up in this cycle, the Bohumil project began with the idea of creating a "fourth wave" place where coffee lovers could drop in casually.
Bohumil sendagaya is like a mock-up cafe or a place to conduct studies for this purpose, which is constantly being re-created while remaining open for business. While studying the layout of the furniture, plants, and signage on a 1:1 scale on-site, we are making repeated trials and errors for the Bohumil flagship cafe that will eventually be rebuilt in a new building in Seoul. Our experiment, which inserts a small shop discreetly into an existing space, will continue here for a little longer to explore what a small yet sustainable cafe will be like.





















