This is a private house in Jakarta, Indonesia, for a dentist couple with 2 kids. The site is a typical rectangular shape, with both sides and the rear of the house closed off from the neighboring houses, and no ventilation or sunlight can be expected from the side openings. The front façade faces neighboring houses. Despite these challenges, homeowners desire a home that feels open and lush with greenery.
Design concept & spatial organization – The 1st floor is intended for service areas such as carport, washing area, bedroom, and kitchen forthe household assistant. The 2nd floor is organized as an open plan, creating a continuous connection between the living room, kitchen, and dining area. This layout minimizes spatial fragmentation, improves functional efficiency, and allows daily activities to flow seamlessly, ensuring that family members remain aware of each other's presence throughout the house.
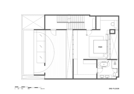
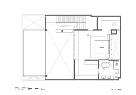
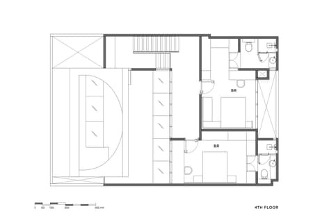
Upper levels accommodate the bedrooms and shared family spaces, arranged in a split-level configuration and connected by a central staircase. This structure strengthens visual and spatial relationships between floors while establishing a balanced transition between private areas and communal living spaces.
Microclimate strategies – To adapt to Indonesia's hot and humid climate, the house incorporates both a front yard and a rear yard as buffer zones, reducing direct heat gain and enhancing cross-ventilation along the full length of the house. A centrally located skylight provides stable natural daylight to the kitchen and dining area while promoting vertical air circulation. The split-level system further supports air movement between spaces, helping the house remain cool and well ventilated throughout the day.





















