La casa se implanta en un bosquecillo de algarrobos en medio de una topografía ligeramente inclinada tratando de incidir en el entorno natural de manera mínima. Se aprovechó las bondades de la sombra arrojada por cada uno de los árboles existentes.
Se decide que la vivienda debía tener una profundidad mínima para ubicarla en los llanos más amplios del bosque y afectar en la menor cantidad posible a los algarrobos. Es así que la casa es implementada como una barra de 7,50m de ancho y 24m de largo.
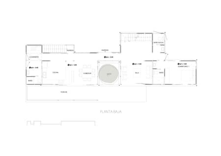
Uno de los algarrobos más desarrollados se acopló a la planta actuando como pivote y articulador de los espacios. El acceso, el área social y de servicios confluyen en el. La intención siempre fue ser parte del bosque.
El acceso a la vivienda nos da la idea de "entrar a fuera" permitiendo volver a dirigir la vista al exterior de manera directa e inmediata. Un pequeño vestíbulo del algarrobo es el que divide las dos alas de la casa, una de servicio y familiar donde la cocina y el comedor se unen directamente con un deck a través de una mampara corrediza que se abre por completo al bosque y deja pasar las sombras proyectadas a todo el espacio.
A la izquierda se compone por un área social que se conecta a través del deck con el comedor haciendo que las familias vivan la casa hacia el exterior y la circulación les permita conectarse desde el exterior de la vivienda. En esta ala se encuentra también un cuarto multifunción que se puede adaptar a familias con un cuarto integrante, estudio o taller. Un espacio independiente que se conecta con un patio de pequeña escala.
La circulación forma un eje importante en la vivienda pues es un recorrido que une las dos alas en línea recta y permite apreciar la vista del bosque de lado a lado.
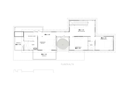
En el segundo piso bajo la misma lógica se encuentra un área con dos dormitorios que se abren a la mejor vista y un área familiar que está en completa relación con el bosque frontal. Un eje de circulación tipo galería empieza desde este punto atravesando por el patio de algarrobos y llegando al cuarto máster.
Para la edificación de esta casa, se plantea un sistema constructivo principalmente solucionado en madera laminada y complementado con elementos rigidizadores de metal.
El sistema se piensa desde una grilla estructural de 1.10m x 1.10m definida por los formatos de material necesarios para los paneles de cierre (bahareques)
Toda la estructura se soluciona con elementos de secciones de 10x20cm para la estructura principal, 4x20cm y 4x10cm para nervios o vigas secundarias y de 10x40cm para los 7 elementos rigidizadores.
Todas las juntas entre piezas de madera se solucionaron mediante tornillería, reduciendo solamente a placas de piso los accesorios metálicos.
En cuanto al material de cierre de la casa, se plantea el uso del bahareque. Un sistema constructivo tradicional que consiste en bastidores de madera, un entramado de caña o bambú, recubierto en las dos caras con una mezcla de cal, cemento y tierra.
El bahareque genera una cámara de aire que trabaja como aislamiento térmico y acústico.
Se utilizó tierra del mismo lote, de las excavaciones de cimentación, sistemas, etc. El resto de cierres de la casa, en ventaneria de madera y vidrio templado.
La casa utiliza un sistema de fosa séptica para el manejo de agua y un sistema de infiltración de aguas grises en el terreno.
The house is implanted in a grove of carob trees in the middle of a slightly sloping topography, trying to influence the natural environment in a minimal way. They took advantage of the benefits of the shade thrown by each of the existing trees. It was decided that the house should have a minimum depth to locate it in the widest plains of the forest and affect the carob trees in the least amount possible. Thus, the house is implemented as a bar 7.50m wide and 24m long. One of the most developed carob trees was attached to the plant, acting as a pivot and articulator of the spaces. Access, the social area and services converge in it. The intention was always to be part of the forest.
Access to the house gives us the idea of "entering outside" allowing the view to be redirected to the outside directly and immediately. A small hall of the carob tree is the one that divides the two wings of the house, a service and a family wing where the kitchen and the dining room are directly connected to a deck through a sliding screen that opens completely to the forest and allows the shadows cast all over the space.
On the left it is made up of a social area that is connected through the deck with the dining room, making the families live the house to the outside and the circulation allows them to connect from the outside of the house. In this wing there is also a multifunction room that can be adapted to families with a room, study or workshop. An independent space that connects to a small-scale patio.
The circulation forms an important axis in the house as it is a route that joins the two wings in a straight line and allows one to appreciate the view of the forest from side to side.
On the second floor under the same logic there is an area with two bedrooms that open to the best view and a family area that is in complete relationship with the front forest. A gallery-type circulation axis begins from this point, crossing the carob tree yard and reaching the fourth master's degree.
For the construction of this house, a construction system is proposed mainly solved in laminated wood and complemented with metal stiffening elements.
The entire structure is solved with 10x20cm section elements for the main structure, 4x20cm and 4x10cm for nerves or secondary beams and 10x40cm for the 7 stiffening elements.
All the joints between pieces of wood were solved using screws, reducing only the metal accessories to floor plates.
Regarding the closing material of the house, the use of bahareque is proposed. A traditional construction system that consists of wooden frames, a framework of cane or bamboo, covered on both sides with a mixture of lime, cement and earth.
The bahareque generates an air chamber that works as thermal and acoustic insulation.
Soil was used from the same lot, from the foundation excavations, systems, etc. The rest of the house closes, in wooden windows and tempered glass.
The house uses a septic tank system for water management and a gray water infiltration system on the grounds.















.jpg?w=450&q=75&dpl=dpl_6NKhQbYoNKZ4YGsW1tKTDHjTc7uH)










