This is the architect's own home, a second dwelling on a large steeply sloping site. A contemporary and functional family dwelling, tuned to the site's unique requirements, one that is thermally high performing, warm, well ventilated and that uses minimal energy.
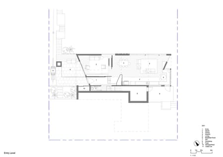
The project is located on Wellington harbor's edge, on the northern slopes of a site, located in a small bush-covered valley. It is accessed from the street below, large trees occupy the lower portion of the site with a 1920s villa/bungalow sitting in the center. The upper portion of the site accommodates this new dwelling some 30 meters up from the street. The living level stretches across the site in the east/west direction to enable tracking of the sun throughout the day. And view out across the valley and to the harbor.
The house sits on the site in a sympathetic way and responds to the existing house below. A stairway 'spine' travels up the side of the property, pulling together the two dwellings and enabling intended and accidental connections. A trampoline that sits on one of the many terraced areas becomes the local play area, bringing together families from the existing dwelling and adjacent properties.
Being located 30 meters uphill from the street influenced the selection of materials. The house had to be built without the need for heaving lifting equipment and is therefore constructed predominantly from timber framing. Where retaining was required light EPS blocks were used. Materials were selected that could be left in their natural state, their patina / natural finish is celebrated with natural wood oils used to provide a protective coating. A variety of timbers have been used extensively on the interior to add warmth and richness. The house is predominantly clad in corrugated color steel as a response to its minimal maintenance and upfront costs. This cladding has been detailed delicately. Where people are more likely to encounter the building, and in areas where the form has been eroded western red cedar has been used as the cladding.



















