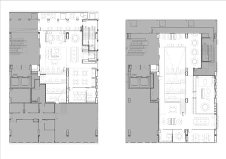
The Sixth Form Center is located in a new building designed for senior high school students at King’s College International School Bangkok. It takes up the space of two floors, and includes lockers, living areas, study areas, playrooms, teacher and consultant rooms, drinking water and snack vending machines
The new center functions like the students’ lounge. They use this space outside classroom hours. Onion provides many types of chairs and seating arrangements to serve how students would like to sit. There are individual seats, group seats, seats for reading, working and relaxation. Navy blue accents and surfaces are used throughout the Sixth Form Center, the colour for the school’s senior year. It is part of a colour palette of pale wood, silver and light blue.
Every space in this Sixth Form Center overlooks another. There is no enclosed space that cannot be seen, for a reason of safety. Many walls are cladded with white coloured glass so that students can write on them. They are made to be easily wiped clean.
The central staircase is designed to be the sitting area that connects the fourth and the fifth floors. Within this space, students can see the activities around them and they can also be seen. The seating faces the football courtyard, the green area of the school. This is for students to see outdoor activities and movements that happen outside.
Playrooms are enclosed by transparent glass. Light blue coloured metal laminate panels are the main materials inside the rooms. They have an exposed gridded structure, covering both walls and ceilings. This enclosure looks like an enlarged graph paper notebook, the kind students use. The same pattern is used in different locations around the Sixth Form Center.
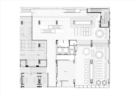
The library is located in a new building designed for senior high school students at King’s College International School Bangkok. The library occupies two floors of the building, connected by a copper laminated staircase and bridge, built diagonally across a double height working space. The total area of the library is 864 square meters.
The exterior elements of this building are mainly brick walls. Onion therefore decided to bring orange bricks into the interior spaces. The copper laminated boards have a shiny effect which is juxtaposed with the matte quality of the brick.
The arrangement of furniture lets students choose how they want to sit and work. Students can sit in front of windows looking out to the city, or on the bridge overlooking the rest of the library. We designed 175 seats for groups with either tables and chairs or sofas. There are also 5 study/meeting rooms for group discussions.
On the first floor of the library, individual reading spaces are located next to the entrance, reception desk, and bookshelves, which hold a maximum capacity of 11,200 books. Reading desks are divided by glass walls, which we covered with a white film for students’ privacy and safety. The film fades from opaque at the bottom to transparent at the ceiling, from the outside you can see only the silhouettes of bodies reading and studying.






