The human being, insofar as they dwell, is a dwelling being. The lived-in house carries a sense of belonging and reveals the essence of those who inhabit it. It is within it that relationships are built, dreams are projected, and memories and imaginaries are evoked.
Thus, to conceive of a house is to translate ways of living into built space. In Casa Torrão, this reflection takes shape on a 390 m² rectangular plot with an east–west orientation, located on a residential street in Colombo, a city located in the metropolitan area of Curitiba, capital of the state of Paraná. For the clients’ first designed home—a mature couple in their 50s, already with children and grandchildren—the main desire was to have a large garden while still providing generous spaces to gather the four generations of the family.
With the intention of preserving as much sunny garden area as possible, a 303 m² house was designed, divided into two floors. The building emerges as a single, solid, and pure volume, reflecting the imagined family unity meant to endure across generations. The proposal stemmed from the deconstruction of a block of raw clay; its volumetry was sculpted as the uses gradually revealed themselves. The subtraction and addition of prisms created openings in search of light and ventilation, while ensuring privacy for the residents.
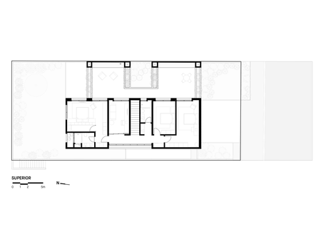
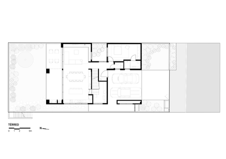
On the ground floor, the spacious social area is organized with integrated kitchen, dining, and living spaces, framed by large glass panels that, when opened, extend these areas into the garden. Also on this level are the service area, the garage, and a suite intended for the grandmother, complete with a private garden. On the upper floor lies the private area, where all bedrooms have access to a shared terrace designed for conversation and chimarrão at the end of the afternoon.
The use of a single exterior cladding—ceramic tiles—reestablishes the connection between the building and the human scale, while also contrasting with its surroundings, a chaotic and unadorned landscape. At times the material is applied flat on the façade, at others interspersed with ceramic bricks, and elsewhere projected outward in relief; by avoiding a homogeneous texture, the constructive gesture is emphasized—something stacked, placed, and set. The living texture plays with sunlight, creating different shadows throughout the year and inviting residents and passersby to remain attentive to the present moment.
As its name suggests, Casa Torrão is a return to origins, both in its urban context and materiality, as well as in its familial essence. After all, a mother’s house will always be understood as the first place—the one from which we set out into the world and to which, in some way, we return.










































