Located 100km from Shanghai, Suzhou is both a first-class metropolis and an ancient city renowned for its flourishing garden culture. This project is situated in a newly developed suburban area approximately 30 minutes by subway from the city center that serves as a population hub.
While the surrounding area is dotted with some of China's most beautiful "water towns" and gardens, the project faced the challenge of how to preserve the local cultural heritage within a new urban landscape dominated by high-rise residential buildings.
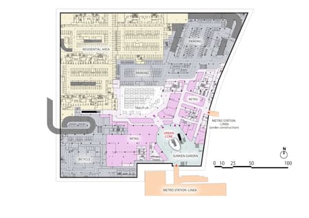
This facility serves as a daily public transportation hub for residents of the newly developed area, with two main bus terminals for local buses and long-distance buses connecting to other cities and international airports, as well as subway and park & ride connections.
The goal was to provide a new space that is both elegant and vibrant, befitting a city with a rich cultural background, while also offering a reasonable plan for multiple public transportation options, as well as creating a scene that reflects people's daily lives.
1. Providing dynamic urban spaces within a "superblock" development – In the suburbs of China's growing major cities, high-rise residential development is rapidly advancing, resulting in a landscape dominated by small neighborhoods enclosed by roads and walls, and centered around car traffic. Public spaces such as squares and streets where people can gather remain scarce. This terminal was designed as a valuable public space where people gather for daily commuting, school, and travel, and where their movements and activities are visible.
Stretching for 300 meters along the main road, the linear building is connected to a green walking path and terraces at the front, a commercial space inside the building, and a quiet plaza on the residential side, creating a passage with various routes to choose from. It opens accessibility to the surrounding urban environment, offering a sense of "softness" and security while providing diverse urban spaces.
2. Beyond a "functional station" to a "station where movement is enjoyable" – In discussions with the client (a joint venture between the developer and the local transportation bureau), the goal was shared to create a new bus terminal that meets two goals: address the convenience and safety requirements of daily commuters and to support the large-scale people movements that occur during the annual Spring Festival and National Day celebrations, while elevating the space into a comfortable environment.
Both sides of the wing-like plan are separated at the ends, with long-distance bus and local bus departure lobbies. A bright, transparent waiting space connects to public green spaces and the city.
All transportation options (buses, subways, taxis, park-and-ride) intersect around the arrival lobby, which is located at the center of the two wings. This configuration enables seamless transfers, guides people through the dynamic "URBAN CORE" atrium space, and connects to the city and commercial facilities.
This circulation route functions as a "street" with horizontal and vertical circulation as commercial and terrace spaces are layered on top of each other. Rather than simply passing through while awaiting a bus or a transfer, people can enjoy fresh air, gaze at the park's greenery while having tea, or buy souvenirs, creating diverse urban life moments.
The URBAN CORE vertical circulation space stretches from the third basement floor to the third above-ground floor, and is guided by the organic overlapping of each floor and the sense of elevation created by skylights. These factors make for an iconic space that naturally invites people's movement.
3. "Glocal" design blends futuristic sensibility and Suzhou Garden culture – Comprehensive transportation terminals in China surely become the "face" of their respective regions. This terminal serves as the "gateway" to a massive development zone. In order to match the important element of its scale, the long frontage facing the main road is designed with sharp horizontal lines to evoke a sense of speed. At the same time, to fulfill the requirements of a symbolic building (in terms of place and regionality) in a suburban development zone, the design aims to create a more human-scale, layered space that resonates with the local population of Suzhou. In the distance, the strength of the beautiful horizon stands out, but as one approaches the building, aluminum perforated screens modeled after the lattice doors of water town architecture softly divide the interior and exterior. The undulating URBAN CORE ceiling, inspired by the interlocking roof tiles, delicately reflects the changing shadows cast by naturally lit skylights, and also changes with the shifting perspectives of persons moving through the space.
The design consideration that aligns the scale sight lines from distant to close-up view pays homage to the Suzhou Garden culture. By embodying "glocal" design with modern materials and technology, it creates a spatial culture befitting this location.



































