The former Telegraph Building in Tbilisi is a monumental piece of Georgia's Soviet-era heritage. Designed in the 1960s by architects Lado Alexi-Meskhishvili and Teimuraz Mikashavidze and completed in the 1970s, this Brutalist landmark was awarded the State Prize of Georgia in 1983 along with the architects. Once serving as the city's central post office and telegraph office, it was more than just an infrastructural hub, but also a nerve center for communication and a vital civic space where the community gathered, making it a powerful symbol of connection and public life.
Following decades of abandonment, Neri&Hu was invited by George Ramishvili, the founder of Silk Road Group, to transform the Telegraph Building, with the aim of creating a seamless fusion of historical preservation and modern architectural brilliance. In line with this vision, the design approach to adaptive reuse moves beyond mere physical preservation, embracing a deeper mission: the safeguarding of collective memory and the reinterpretation of the building's inherent social significance. The guiding principle becomes the revival of the community, a notion once central to its role in communication.
Neri&Hu's transformative intervention is not an act of restoration but of "critical reinterpretation." The approach is guided by Svetlana Boym's concept of "reflective nostalgia," which favors the fragmentary, the incomplete, and the poetic over a mythologized reconstruction of the past. Instead of plastering over the cracks of time, the design highlights them, creating a layered dialogue between the building's raw, existing concrete structure and elegant new insertions. This method honors memory not by embalming the building as a relic, but by allowing its history to resonate through its new life. Aldo Rossi argued that such structures act as permanent anchors of civic memory. Neri&Hu activate this memory by re-animating the building's core social function which is connection.
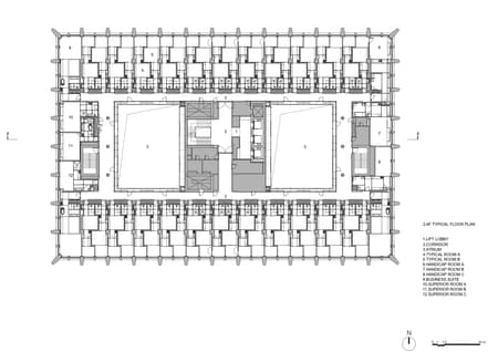
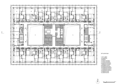
The ground floor is masterfully conceived as an extension of the city's public realm. A network of corridors, evocative of Tbilisi's narrow alleyways, organizes a sequence of public venues with a number of restaurants, a library, a club culminating in the central courtyard. Reinterpreted as an urban square, this interior yet civic space reactivates the building's role as a gathering place, mirroring the communal balconies of Georgian residential complexes. This design embodies Richard Sennett's ideal of "urban porosity," deliberately blurring the boundaries between interior and exterior, public and private. By transforming the threshold into a platform for spontaneous encounter, the design fosters the very social engagement that is the lifeblood of a vibrant city, ensuring the building's continuity in Tbilisi's collective experience.
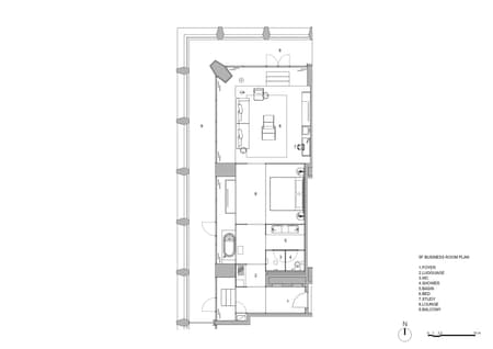
Within the upper floors, the guest rooms are organized within the existing structural grid. A linear, rhythmic arrangement moving from entrance to lounge to window evoking the experience of a railway carriage, a deliberate nod to the historic Silk Road. This metaphor is profoundly linked to the themes of Paul Bowles' "The Sheltering Sky," which distinguishes between the tourist, who merely passes through, and the traveler, who seeks immersion and connection with a place. As one character states, "A tourist is someone who thinks about going home the moment they arrive…a traveler might not come back at all." Neri&Hu's design consciously creates a destination for the "traveler"—a space for contemplation and rest that frames the journey itself as the destination. It transforms the act of staying there from a simple transaction into a narrative of movement and discovery, linking the building's historic role in communication to modern rituals of journey.
The Telegraph Hotel is a quintessential example of this idea. It does not embalm the Brutalist monument as a relic; it gives it a new, vibrant life that honors its past. This approach fosters a form of deep idea of cultural tourism, where visitors are invited to engage with the layers of history, materiality, and social meaning. They don't just see a historical site; they inhabit a continuing story, becoming temporary participants in the civic life of Tbilisi.
Neri&Hu's intervention allows the building's historical narrative to resonate in profound new ways. By weaving together ideals of civic engagement, the traveler's quest for authentic experience, and the ethos of living preservation, the project achieves a remarkable synthesis. What was once a site of telegraphic connection has become a layered architectural narrative of community, memory, and mobility. The Telegraph Hotel thus honors its legacy not as a dormant monument, but as an active, breathing civic space that continues to foster collective belonging in the heart of Tbilisi.













































