The "Kalle Neukölln" project revitalizes the historic Quelle department store on Karl-Marx-Straße in Berlin. This large-scale building, including an adjoining multi-story parking garage built in 1970, is one of Neukölln's key properties due to its location on the district's central shopping and traffic artery. The radical reprogramming of the property by Berlin-based developer MREI and the redesign of the façades by Max Dudler transform the former department store into a vibrant neighborhood creative hub. The existing structural framework has been repurposed based on the principle of "rethinking instead of demolishing," creating a contemporary space for work, enjoyment, and interaction. The project serves as a prototype for preserving the "grey energy" embodied in the building's structure and provides a forward-thinking response to the structural transformation of the retail sector.
Across a total area of 40,000 m2, an environment brimming with diversity is being created, connecting collaboration, culture, and enjoyment on every level. The development includes 4,000 m2 of rooftop gardens, 26,000 m2 of office space, 4,000 m2 of retail space, and, as its centerpiece, a 6,000 m2 hall dedicated to gastronomy, events, and an indoor food market. The transformation of this central department store property into „Kalle Neukölln" sends a strong signal for the reinvention of Karl-Marx-Straße as a vibrant main thoroughfare in the heart of Neukölln. This new concept benefits not only tenants but also visitors, the neighborhood, and ultimately the entire district. The diverse range of uses and the lively urban activity, both indoors and outdoors, from the basement to the rooftop, are designed to inspire and strengthen one another. The Kalle Neukölln project offers hope that urban planners will recognize the potential of other seemingly dead spaces and harness their genius loci for successful reinterpretation.
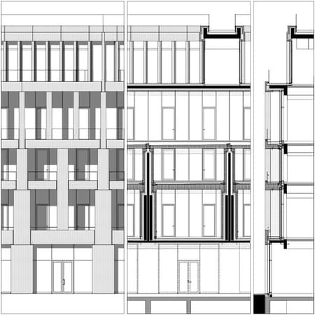
The façade design divides the large building complex into two equivalent yet contrasting parts. The southern structure facing Karl-Marx-Straße features a bright, stone loggia made of artificial stone, while the northern structure facing Ganghofer Straße, the former parking garage, is clad with a bronze-colored metal façade. At the site of the former spiraled parking ramp between the two building sections, a „Winter Garden" is being created—an event area that serves as a connecting element. The redesign aims to better integrate the building volumes into the context of the surrounding architectural landmarks within the urban landscape, while also making the building's conceptual transformation attractively visible from the outside. The structure is based on the existing building and was only supplemented or cut back in critical areas to establish a meaningful connection to the urban fabric.
The old Quelle department store was designed in 1970 by the architectural team Hendel-Haseloff-Hotzel as a brutalist megastructure. The utopian spirit that once animated this radically modern, somewhat anti-urban architecture was completely lost during the transformation of the complex into a SinnLeffers store in the 1990s. The parking garage, in particular, had come to appear almost grotesque. The original concrete structure was designed in the spirit of the times with enormous spans of up to 24 meters and features monumental-looking concrete beams and columns. This structure is being retained and left visible to unlock its aesthetic potential. Its reuse also offers a significantly better CO2 balance than constructing a new building from wood, thereby setting an example of sustainable building practices.
The structural transformation in retail is impacting countless city centers. It requires rethinking public spaces and will reshape and reconfigure urban centers. So far, there is often a lack of forward-looking approaches to dealing with the outdated building type of the city department store, which is frequently located in particularly critical areas crucial for urban development. Developing these sites necessitates close engagement with the social and political environment, as all stakeholders are highly sensitive to changes in these locations. Such a complex project can only succeed through the collaboration of various planning partners with complementary expertise. The Berlin-based office Realace developed initial concepts, which were further refined in cooperation with local politics and administration. Usage structures, mobility concepts, and social and cultural aspects were equally considered. Max Dudler was responsible for developing and designing the urban and architectural appearance, while the architectural firm Aukett + Heese managed the interior realization.
The former department store and parking garage is uniquely suited for extraordinary events. MREI places great emphasis on close collaboration with local stakeholders, having established strong connections with district-based groups and facilitated temporary uses, such as during the „48h Neukölln" art festival. The building's distinctive appeal is reflected in its new tenant mix. It now houses the CODE University of Applied Sciences, as well as SoundCloud, the world's leading music streaming platform; Rough Trade, a legendary music store from London; the startup accelerator Delta, and "Kiez" offices, which offer flexible office spaces for freelancers and small businesses.













.jpg?w=450&q=75&dpl=dpl_6NKhQbYoNKZ4YGsW1tKTDHjTc7uH)