The house for a migrant businessman, his wife and three daughters is located in the dense urban fabric of Chennai, a metropolis in southern India. The tight and narrow site of 41 x 102 feet (12.5 x 31 meters) is only open on one corner that connects it to the cul-de-sac. Being bound by houses on three sides, and a high apartment complex on its longer side, left little scope for light and ventilation and deprived it of much of its privacy.
Adding to the challenges of the surroundings are the strict limits imposed by Vaastu that had to be incorporated into the design. These set principles of traditional Indian building design are derived from myths and defy the logic of rational, contextual space planning. It assigns fixed locations to the cardinal points for various spaces and elements, including the entrance, bedrooms and kitchen, down to the direction of a person sleeping and of water closets.
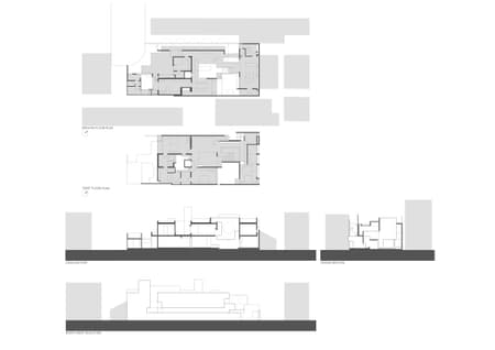
Taking advantage of the development authorities’ bylaw that allows wall-to-wall construction, the house extends to the edges of the site on three sides to maximize usable floor area and utilizes the otherwise residual margin space. A concrete plane envelopes the periphery to form a monolithic shell that shields its contents from the world outside. It is only upon entering that the plane unfolds to reveal its hollowed center.
Borrowing from the idea of the traditional Indian courtyard, large voids are carved out from within, bringing in ample light, air, and greenery. The largest of these courts is positioned at the heart of the house and seamlessly extends indoors at ground level—an open flexible floor plate of the home’s living areas. It both segregates and connects the formal living areas from the private ones that flank it, to form the hub of family life, where activities can converge. Smaller courts are placed along both axes of this central court, visually connecting the entire length and width of the site. Private areas are lifted to the upper levels of the house and open further into smaller secondary courtyards and through carefully positioned windows into margins of the neighboring context.
The staircase, walls, and slabs are viewed in a capacity other than their basic structural function. With the ground floor almost completely free of columns, the structure is mostly suspended from above and is treated as a continuous concrete plane in three dimensions that encloses and connects the house in a seamless continuum of space. The planes cut, bend, and fold to create a perceptible notion of movement within the house—a composition of a seemingly light structure, held in delicate, precarious balance, and play.

.jpg?w=450&q=75&dpl=dpl_6NKhQbYoNKZ4YGsW1tKTDHjTc7uH)
.jpg?w=450&q=75&dpl=dpl_6NKhQbYoNKZ4YGsW1tKTDHjTc7uH)
.jpg?w=450&q=75&dpl=dpl_6NKhQbYoNKZ4YGsW1tKTDHjTc7uH)
.jpg?w=450&q=75&dpl=dpl_6NKhQbYoNKZ4YGsW1tKTDHjTc7uH)
.jpg?w=450&q=75&dpl=dpl_6NKhQbYoNKZ4YGsW1tKTDHjTc7uH)
.jpg?w=450&q=75&dpl=dpl_6NKhQbYoNKZ4YGsW1tKTDHjTc7uH)
.jpg?w=450&q=75&dpl=dpl_6NKhQbYoNKZ4YGsW1tKTDHjTc7uH)
.jpg?w=450&q=75&dpl=dpl_6NKhQbYoNKZ4YGsW1tKTDHjTc7uH)
.jpg?w=450&q=75&dpl=dpl_6NKhQbYoNKZ4YGsW1tKTDHjTc7uH)
.jpg?w=450&q=75&dpl=dpl_6NKhQbYoNKZ4YGsW1tKTDHjTc7uH)
.jpg?w=450&q=75&dpl=dpl_6NKhQbYoNKZ4YGsW1tKTDHjTc7uH)
.jpg?w=450&q=75&dpl=dpl_6NKhQbYoNKZ4YGsW1tKTDHjTc7uH)
.jpg?w=450&q=75&dpl=dpl_6NKhQbYoNKZ4YGsW1tKTDHjTc7uH)
.jpg?w=450&q=75&dpl=dpl_6NKhQbYoNKZ4YGsW1tKTDHjTc7uH)
.jpg?w=450&q=75&dpl=dpl_6NKhQbYoNKZ4YGsW1tKTDHjTc7uH)
.jpg?w=450&q=75&dpl=dpl_6NKhQbYoNKZ4YGsW1tKTDHjTc7uH)
.jpg?w=450&q=75&dpl=dpl_6NKhQbYoNKZ4YGsW1tKTDHjTc7uH)
.jpg?w=450&q=75&dpl=dpl_6NKhQbYoNKZ4YGsW1tKTDHjTc7uH)
.jpg?w=450&q=75&dpl=dpl_6NKhQbYoNKZ4YGsW1tKTDHjTc7uH)
.jpg?w=450&q=75&dpl=dpl_6NKhQbYoNKZ4YGsW1tKTDHjTc7uH)

