The project occupies a two-level penthouse where both floors have independent access. By utilizing this dual-entry condition, the design reorganizes the vertical circulation, placing the primary entrance on the upper level and redefining the ritual of returning home while transforming storage into an architectural façade. The TV wall is raised and set back to create an expandable storage zone, where sneakers, skateboards, sports gear, and outdoor clothing are neatly organized. A red semi-circular volume accommodates large camping equipment and is positioned adjacent to the dust-off area, allowing the processes of leaving and returning home to flow seamlessly.
The 10th floor serves as the main living and play level for the family and their daughter. An intentionally open floor area allows activities to unfold freely. The kitchen, dining area, and play zone are arranged next to each other to form a shared after-school hub, while a USM system functions as a toy cabinet that encourages a simple routine: play with one item, put one item back.
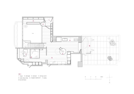
The 9th floor accommodates the living room and the master suite. The master bathroom is located adjacent to the dressing room and laundry area, forming an efficient domestic circulation. The bathing space is enlarged as a daily moment of restoration. A tatami room acts as a buffer space, suitable for naps, yoga, or flexible overnight stays.
Through spatial layering and volumetric articulation, the design creates an acoustic buffer that addresses the common sound insulation limitations between apartment units. The upper level supports dynamic family activities, while the lower level provides a quieter environment for rest and recovery. A lockable sliding door in the master bedroom controls both privacy and stair access. A pair of foldable desks allows work, reading, and parenting to shift fluidly, enabling the home to evolve with the growth of the family.



















