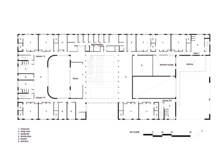
The newly opened elementary school 'Borgafjellet' on the western coast of Norway, near Bergen, is unique in its combination of hybrid ventilation and solid wood on all surfaces. The overall goal for the project was to create the best possible healthy indoor environment for the 420 pupils and their teachers. The project group set high ambitions for sustainability, climate footprint, durable materials, and indoor climate, cultivating an innovative building with solid sustainable qualities for many generations.
Leading the process from A to Z. LINK Arkitektur has been an advisor for planning, landscape architecture, building physics, and architecture. - It has been a great learning experience for both parties to cooperate so closely during the whole process, from the early phase to the completed building. This project has required specific knowledge in both solid wood and hybrid ventilation. We, therefore, put together a strong interdisciplinary team to bring out the best in all parts of the project, explains architect and project manager Bjørn Feltens in LINK Arkitektur.
A breath of fresh air. The school has extensive use of solid wood, which significantly reduces climate footprint and a stable indoor humidity level. Exterior walls, interior walls, floor dividers, roofs, stairs, railings, and load-bearing interior walls are solid wood. Even non-load-bearing interior walls are clad in the solid wood surface. In addition, the school has hybrid ventilation, which combines both mechanical and natural air supplies. The ventilation method lets fresh air in through automatically controlled windows, improves air quality, and effectively regulates the temperature.
Shelter for the rough climate. The western coast is known for its rough climate. Two hundred thirty days a year with heavy rain calls for generous areas for the pupil's activities outdoor with a big spanning sheltering roof. The entire outdoor facility is a significant contribution to the local community and attracts visitors from the surrounding areas. The school building is maintenance-friendly, including cladding in ore pine as well as solar cells on the roof and local energy wells. In collaboration with hybrid ventilation, this reduces energy consumption and the school's climate footprint.
Healthy microclimate. The interior is characterized by wood, which provides a beautiful and nature-friendly impression offering physiological and psychological well-being effects. A varied color palette in natural earth and mineral colors gives each level a different character, and the natural pigment wall paint offers a warm glow. The classroom microclimate influenced by ventilation, temperature, and humidity rate provides an indoor air quality, which improves students' health and learning outcomes.

.jpg?w=450&q=75&dpl=dpl_6NKhQbYoNKZ4YGsW1tKTDHjTc7uH)
.jpg?w=450&q=75&dpl=dpl_6NKhQbYoNKZ4YGsW1tKTDHjTc7uH)
.jpg?w=450&q=75&dpl=dpl_6NKhQbYoNKZ4YGsW1tKTDHjTc7uH)
.jpg?w=450&q=75&dpl=dpl_6NKhQbYoNKZ4YGsW1tKTDHjTc7uH)


.jpg?w=450&q=75&dpl=dpl_6NKhQbYoNKZ4YGsW1tKTDHjTc7uH)
.jpg?w=450&q=75&dpl=dpl_6NKhQbYoNKZ4YGsW1tKTDHjTc7uH)
.jpg?w=450&q=75&dpl=dpl_6NKhQbYoNKZ4YGsW1tKTDHjTc7uH)
.jpg?w=450&q=75&dpl=dpl_6NKhQbYoNKZ4YGsW1tKTDHjTc7uH)
.jpg?w=450&q=75&dpl=dpl_6NKhQbYoNKZ4YGsW1tKTDHjTc7uH)