The building is located in the Alazani Valley, a centuries-old, traditional cradle of the region's winemaking, set against the backdrop of the Caucasus Mountain range and vineyards. Winemaking in Georgia holds a ritualistic and sacred significance. Therefore, matters related to wine such as its production, consumption, or the places where this process occurs are surrounded by an emotional climate that cannot bypass historical tradition, including the builder’s art. This heritage manifests itself in the form of paraphrased elements of medieval tectonics, yet in each individual case, without insisting.
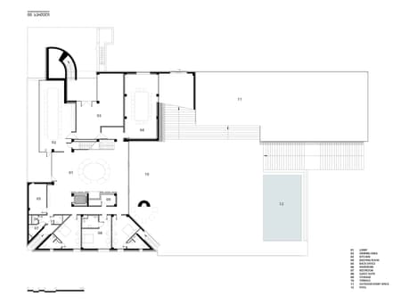
Functionally, this is a winery that also encompasses a small hotel, a reception area, a conference space, and a restaurant.
The building is oriented northward toward the Caucasus range, from where a grand staircase descends into the vineyard and factory zone. The production section is concealed within the slope of the terrain, creating the impression that this is not a factory, but a modest, freestanding estate of domestic scale.
The building is frontally oriented toward the reservoir arranged before it. Visually, the structure appears carved from a single material or a large boulder; however, its sides are strictly divided by architectural themes, separated by sharp "pauses" of volume and dark shadows. The form is shaped by sculptural masses and monolithic volumes intersected by arched voids, where historical and modern constructive tectonics meet. The architectural character is founded on a balance of antagonists: the structure is simultaneously firmly grounded on the earth and "suspended" in the air.
The dichotomy continues in the surface treatment: on one side, there are hand-sculpted, tactile walls that emphasize the connection to the earth, while on the other, glossy, cold surfaces create a contrast and "dissolve" the building into the environment. The interior is organized around a main, double-height space. In content, this room is a medieval castle hall with a fireplace, while functionally, it serves as a comfortable lobby. The second central element of this space is the staircase, which attempts to resemble an organ; however, its particle formed geometry represents a continuation of a similar theme found on the building's eastern facade.
The interior is monochrome, though composed of several elements, such as the matched textures of wood and plaster. Additionally, the inclusion of small colored inserts, which determine the muted coloration, is dictated by the Georgian fresco tradition. In the hotel rooms, a boudoir atmosphere formed by drapery is notable.














































