The Center for Computing & Data Sciences at Boston University is a landmark for the university. It transforms the skyline, meets laudable sustainability goals, and prioritizes human-centered design, maximizing collaboration and interconnectivity. The project brings together the mathematics, statistics, and computer science departments, building community among the 3000 students, faculty, and staff. Realized as a vertical campus.
Towering boldly over the banks of the Charles River at 19 stories, and spanning 345,000 square feet, the Center is the largest, sustainable, operational fossil fuel-free building in Boston. Recognized by its cantilevered volumes that feature both reddish-brown-colored diagonal louvered (to minimize solar gain and maximize shading) and gleaming mirrored sawtooth facades that rest atop the triple-glazed curtain wall that clads the structure. While contributing to the building’s distinctive linear aesthetic, these design elements also contribute to comfort and sustainability efforts, keeping the building warmer in the winter and cooler in the summer.
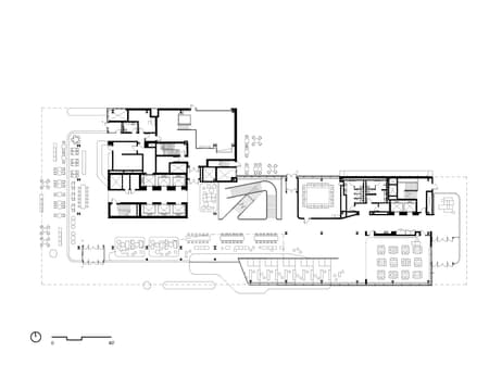
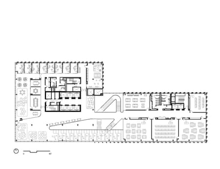
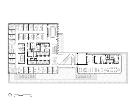
The podium juts out to hover over Commonwealth Avenue to complete the streetscape and generate maximum ground-floor animation on the avenue. Highly transparent and porous, it functions as an urban porch for arrival, study, and gathering. The Center is conceptualized to function as ascending academic neighborhood with lower floors devoted to math and statistics, middle floors for computer science, and top floors for interdisciplinary work and public space. A central atrium unites faculty and students in a collaborative spirit and an interconnected staircase emerges from the area weaving upwards of 138 floors to connect various disciplines, nurture cross-pollination of ideas, and spark serendipitous encounters.
The design sets an ambitious new sustainability precedent for future academic buildings in Boston and beyond. In line with Boston University’s Climate Action Plan, which aims to reduce the institution’s carbon emissions to zero by 2040, the Center is targeted to attain LEED Platinum and is 100% operational fossil-fuel free with a geothermal closed-loop system that heats and cools the building through a ground source heat pump system.
The building draws on renewable and alternative energy sources, including groundwater recharge systems and cutting-edge exterior shading systems. Open interior spaces take advantage of the Center’s unique position in the heart of Boston, with expansive river views afforded from three sides of the building. Classrooms and collaboration spaces are illuminated with an abundance of light with floor-to-ceiling windows to remind students enveloped in the digital realm to remain inspired by the natural world and remember the link between technology and humanity. Whiteboard walls throughout the core stimulate collaborative ideation while putting processes on display.
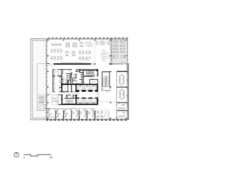
The state-of-the-art building includes 12 classrooms, two computer labs, a cafe on the ground floor, numerous collaboration spaces, and a plaza with a covered bike shelter. The stacked campus culminates in an event space and a three-story-high open-air pavilion. Green roofs and terraces are located throughout the Center to connect students, faculty, and staff to the natural environment, and offer views of the city. These open spaces allow for increased connection and collaboration among the various departments that now call the Center home.






















