Nightingale is a model for triple-bottom-line developments. This development was led by the Architect to produce medium-density housing that is environmentally, socially, and financially sustainable. Combining ethical investors and best practices in design, the ultimate goal of Nightingale is to provide great-value housing by simplifying both the development process and the building itself.
Kennedy Nolan's work in single and multi-residential projects; our exploration of interiors and landscape; our experience delivering a conventional development product, and our own investment in other Nightingale projects, led us to a Nightingale License in 2016. The following year, we purchased a site in a precinct shared with six other Architects. Alongside our professional contemporaries, we are contributing to an exciting urban village beside the Upfieldtrain line in Brunswick, in the inner north of Melbourne.
A generative gesture was to tint the grey pre-cast a warm ochre from which we built a tonal palette of orange-red windows, doors and metalwork and terra-cotta painted FC sheet all offset against raw concrete. The walls and ground plane at the base of the building, the principal point of close interaction on the street, are clad in the familiar pressed-red bricks of 19th-century Melbourne. All elements are arranged with a playful approach, particularly on our west façadewhich has a friendly personality generated by its mega-scale zoomorphic composition. This western façade is visible from a great distance over Brunswick and as the western sun hits it in the afternoon, it glows warm and friendly.
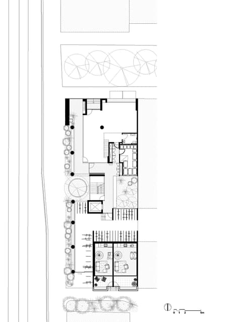
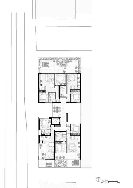
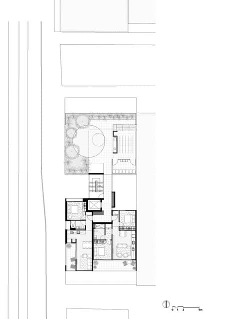
The building consists of 27 apartments, ranging from small 34 sqm 'teilhaus' (studio) apartments to generous 80 sqm 2-bedroom apartments. The building is an exemplar in sustainable design (including a 7.5-star NatHERS thermal rating, 100% fossil fuel free in operation, zero private car parking, and access to 15 car share vehicles).
Twenty percent of the apartments have been voluntarily pre-allocated to an affordable housing provider and purchaser priority is given to key service workers, individuals with a disability, and Aboriginal and Torres Straight Islanders.
This is a building designed with community in mind, a community that is diverse, cohesive, and connected. We are proud to have delivered 27 homes that have the comfort, delight, and function for which our practice is known.




























