KAAN Architecten has completed JUMP in Paris, a vision of urban vitality and sustainable design principles. JUMP is located at the intersection of diverse urban areas in Aubervilliers, Paris. Commissioned by Icade, KAAN Architecten designed a building that connects two green zones, "Place du Front Populaire" and the urban forest of "Parc Icade des Portes de Paris". With its colossal landing, JUMP has established itself as the central point of convergence in the area. The building integrates a hotel, offices, retail spaces, and parking. The design embraces the area's eclectic architecture and enhances the dynamism of this urban area served by Metro Line 12.
JUMP bridges the pre-COVID era with today. Designed between 2017 and 2020 and built between 2020 and 2023, it has evolved in response to recent global crises, resulting in resilience and ensuring adaptability to future challenges. Icade wanted to create flexible, interconnected and well-lit office floors that offered comfort and ease of use throughout. Their vision extended to a hotel with 180 rooms catering to small budgets, strategically positioned to bring animation to "Place Front Populaire". The brief emphasized buildings that are easy to operate and maintain while demonstrating exemplary energy efficiency.
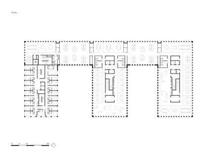
Rising 30 meters high on a 45 x 90-meter footprint, JUMP integrates two west-facing voids with gardens that connect the green areas of "Place Front Populaire" and "Parc Icade des Portes de Paris". These spaces serve as entry thresholds for offices and terraces for restaurants. Four cut-outs reflecting the sky distinguish the five volumes on the east facade. The transparent public plinth, which reveals gardens and neighbouring buildings, provides the visual connection between "Rue de la Garance" and "Rue des Fillettes". To the north, the hotel volume, and to the south, the office volume, emerge from the park, contrasting dense urbanity with lush greenery. The loggias on the top three floors break the rigidity of the elevation. Retail, lobbies, receptions, restaurants, cafes and terraces connect the building to the public realm on vibrant ground and roof levels.
KAAN Architecten's construction principles for JUMP are based on three key parameters: designing flexible spaces, minimizing building materials, and ensuring robust structures. The façades and cores of the building are designed to be load-bearing without requiring additional support, allowing open, column-free interior spaces. To the east, thin prestressed hollow core slabs make it possible to cross the building's 13-meter width. To the west, three protruding volumes, each 19 meters thick, contain circulation cores in the centre and either workspaces or hotel rooms on the sides. With a solid mass of 43 cm every 1.35 metres, the façade grid on the office side offers flexibility in the partitioning of workspaces. Precast concrete "T" elements form the building structure and façade, with no cosmetic additions. The 43 cm sections are aligned horizontally, concealing the slab structure and creating a uniform grid over the entire comb-shaped volume. Large vertical windows define the façades of these different volumes. The hotel features large panoramic windows that highlight the spaciousness of the rooms. From the "Place du Front Populaire", ninety travel scenes illuminate the façade of the hotel.
The anodized aluminium joinery varies in colour: bronze for the hotel, reflecting its immediate environment, and silver for the offices, creating a tone-on-tone aluminium/concrete aesthetic. On the street side, the joinery is hidden inside. This increases the character of the concrete. On the garden voids side, the joinery is flush with the façade, enhancing the excavation effect of the voids and reflecting the sky and ambient light in the glass and oversized aluminium frames. The client set ambitious and clear objectives from the start. They aimed to create an exemplary project with a low carbon impact, high energy efficiency, and innovative solutions. The choice of low-carbon materials and the integration of reused components by KAAN Architecten reduced the carbon footprint by nearly 30% compared to the Carbon 1 threshold of the E+C-label. The overall Greenhouse gas emissions stand at 1124 kgCO2eq/m², with 842 kgCO2eq/m² attributed to construction materials and energy consumption.
Energy consumption has been carefully considered, as evidenced by the extremely low permeability of 0.43 m³/(h.m²). The concrete grid's rhythm and thickness, along with the joinery's design and placement, contribute to the building's thermal and light balance. A geothermal solution further enhances efficiency, providing a low carbon impact compared to electric or gas solutions. The building has been awarded certifications including HQE Bâtiment Durable Excellent, BREEAM New Construction Excellent, E+C- level E2C1 and Label BBCA Performance, embodying a sustainable, future-ready architectural solution that enriches its urban environment. These certifications confirm the success of KAAN Architecten's project in meeting today's environmental challenges and its high performance in all major areas. JUMP isn't just a building; it's a forward-thinking, sustainable architectural solution designed to connect and enrich its urban environment. Its versatile design and commitment to sustainability make it a shining example of how buildings can evolve and thrive, meeting both current and future needs. With JUMP, KAAN Architecten demonstrates how buildings can flourish while addressing environmental challenges, establishing it as an outstanding example of sustainable urban integration and adaptation.





































