KAAN Architecten unveils the Education Centre University of Groningen: an innovation hub and study landscape. KAAN Architecten has completed the Education Centre University of Groningen (Anda Kerkhoven Centre). The 12,000 m² building forms the new heart and main entrance of the Healthy Ageing Campus. It is designed to support learning, promote health, and foster social interaction. The architecture embodies these principles, creating a space that prioritises the well-being of its users.
Groningen, the largest city in the northern Netherlands, hosts a student population of over 60,000. Located just outside the historic city, adjacent to the University Medical Center Groningen (UMCG), the Healthy Ageing Campus unites students and researchers from the Medical Sciences Faculty. KAAN Architecten has designed the first education centre in a planned series of shared facilities to support clinics, research and industry on the Healthy Ageing Campus. The project reconnects the campus to Groningen's historical city centre after extensive development in the northern area of the UMCG. The plot became available by removing the existing road extending from the city centre. Positioned centrally on this axis, the building serves as a recognisable landmark, reinforcing the connection between the campus and the city. Apart from the integration of patio gardens at different levels and high-quality public spaces designed by Felixx Landscape Architects, the new Education Centre links various UMCG facilities. It also enriches the northern entrance of the campus by extending the outdoor public space into the interior, enhancing the direct connection and fluid circulation throughout the buildings.
At the core of Healthy Ageing is the creation of a health-promoting environment. The Education Centre's design emphasises comfort, natural light, and ventilation to support physical, mental, and social well-being. It invites students to engage with the campus beyond classes, offering various spaces for collaboration, study, and relaxation. From open group workstations to sheltered individual areas, the Centre fosters knowledge sharing among students, faculty, and visitors. Its welcoming facade and vibrant program give the campus a fresh identity.
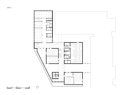
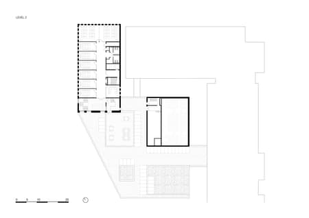
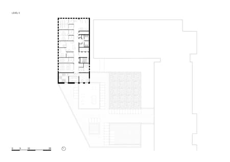
The architectural design features five distinct volumes. These volumes connect seamlessly to the central foyers, both horizontally and vertically, across the ground and upper floors. This arrangement promotes a cohesive flow between spaces, enhancing accessibility and interaction throughout the building. The positioning of the volumes is decided in response to the key sightlines and the desired spatial quality of the complex. The horizontal foyer itself is framed by a transparent facade facing the public square, main entrance and several green patios. The patios mark the transition to existing buildings at different levels and introduce light into the lower floors. The horizontal foyer always provides a view of the outside and the other buildings, allowing users to understand the complex naturally. It is organised within and around brick volumes -the "seminar halls"- with a food court, auditorium, lecture halls, project spaces, meeting rooms and an independent commercial area. The vertical foyer connects the "seminar halls" with the "learning tower", which houses classrooms, computer rooms and a Skills lab. A wide and comfortable staircase, combined with study spaces, works as a continuity of the public space on every floor. To promote stair usage to contribute to healthy ageing, the elevators only stop on odd-numbered floors, requiring users to walk up or down one floor. The large, deep windows characterise the tower's brickwork façade and offer a play of openings with diverse, satisfying views over the city centre. Finally, the building's pleasant and accessible green roof terrace strengthens the green heart of the campus.
The programme has been rationally organised with enough flexibility to allow easy changes to the spatial arrangement in the future. Two of the three lecture halls consist of platforms rather than fixed seating, making different types of teaching settings possible. The tower's standardised grid with a finer grid of technical installations and a larger structural span also allows for various spatial arrangements.
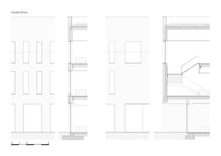
Ease of access, high comfort levels, sufficient daylight, and green views ensure a healthy and sustainable environment. Also, a range of sustainable materials with low environmental impact is utilised throughout the building's life cycle. These natural materials are chosen for their ability to change over time and age gracefully. Both the exterior and interior walls are covered in regionally sourced brickwork. The selected light sandy brick colour contributes to the creation of a warm atmosphere. The interior doors and window frames are made of massive oak, and the foyer's floors and walls are made of concrete. Brick walls combined with smooth yet tactile exposed concrete define the space and imbue it with a robust urban feel while still being a friendly interior space. With its high ceiling and roof construction semi-visible through the metal mesh, the horizontal foyer is brightened by subtle daylight penetrating through the skylights above and the facade's glazing. In contrast to the foyers, the teaching spaces are clad in wood, offering a light and natural ambience.
"The new Anda Kerkhoven Education Centre will bring a fresh identity to this part of the campus while connecting and reinforcing the surrounding buildings, a new public space comes to life," concludes Vincent Panhuysen, founding partner of KAAN Architecten.





































