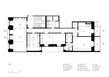
The apartment is located at Avenidas Novas in an "Art Deco" building characterized by large compartments with high ceilings and decorative elements, in both ceilings and walls.
The space develops in all the depth of the building, structuring itself on a long corridor which distributes to the several compartments.
The apartment was previously occupied as an office that had already changed the original floor plan, therefore this project was also about restoring the original housing function.
The living and dining rooms are located on the main façade. A wall was also demolished in order to get the façade whole-width corresponding to the apartment and connect the whole social area together in one unique space, with a single window front to the main façade.
The kitchen has been relocated to the compartment immediately adjacent to the living room, improving space fluidity and allowing the so desired split between the social and private areas.
In the middle of the corridor, towards the patio, a large bedroom was designed, resulting from the merge of two compartments and one bathroom for common use.
Given the size of the common bathroom, a bathtub was placed in a large niche with indirect lighting, and independent compartments were designed both for shower and for toilet and bidet. The entire bathroom has been cladded in cement, creating a neutral and homogeneous environment.
Further deep at the back, the master-suite with walking-closet and another bedroom where the old kitchen was were implemented, with the chimney being used to design a “wardrobe bed”, thus creating a more welcoming sleeping area.






















