MUSEUM.C at AK Plaza Bundang reinterprets the conventional department store academy as an adaptive cultural platform positioned at the intersection of retail, media, and experiential design. Conceived as a space that “collects and connects meaningful content,” the project moves beyond fixed, classroom-based typologies to support a wide range of programs from wellness workshops and culinary classes to immersive media exhibitions.
Rather than static compartmentalization, the design introduces a kinetic system of movable walls that retract into the rear perimeter and arched ceiling. This allows the space to transition seamlessly between intimate workshops and large-scale exhibition formats, maintaining visual clarity while maximizing the use of a fixed footprint. The result is a “breathing” interior, one that continuously adapts to changing programmatic needs.
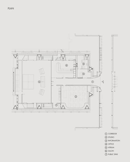
The spatial sequence begins along the department store’s main circulation spine, where a flared entrance leads into a compressed, elongated tunnel. As the ceiling height gradually expands, the space creates a moment of sensory decompression, filtering out the visual intensity of the retail environment and resetting the visitor’s perception.
This sequence culminates in a 7-meter-high vaulted hall anchored by a media arch. Designed for projection mapping, its curved surface enables nearly 270 degrees of immersion, embedding digital content directly into the architecture. Here, media is not an overlay but an integral part of the spatial experience. A consistent use of arches extends this language into adjacent areas, reinforcing continuity and cohesion.
At its core, the project operates through spatial elasticity. By replacing fixed partitions with retractable elements, the architecture can be fully reconfigured to accommodate both modular programs and large public events, without physical expansion. This adaptability becomes a key strategy for sustainability, extending the utility of the existing structure.
Material decisions support this approach. Ecological finishes, including paints by OIKOS, contribute to indoor air quality while aligning with long-term environmental responsibility. Rather than relying on extensive new construction, the project prioritizes efficiency through flexibility.
Beyond its technical framework, MUSEUM.C addresses the psychological demands of contemporary retail environments. Through moments of compression, release, and pause, it offers a subtle architectural reset, encouraging slower, more intentional engagement.
Embedded within a high-traffic commercial setting, MUSEUM.C positions the department store as a cultural common. It demonstrates how retail interiors can evolve beyond consumption-driven spaces into environments that support civic, educational, and immersive experiences.







































