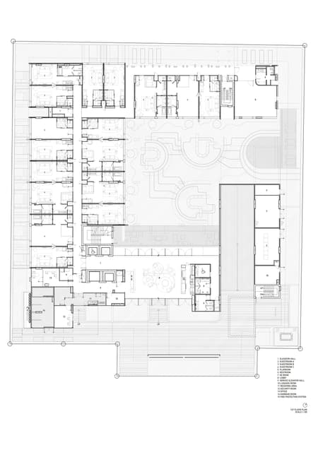
Dusit D2 hotel is located in Hua Hin, one of the popular provinces for family vacations in Thailand. Since the project plot is not adjacent to the beach and is surrounded by other shophouses and condominiums, the primary consideration is to create privacy and to create its own picturesque views to compensate for the beachfront area.
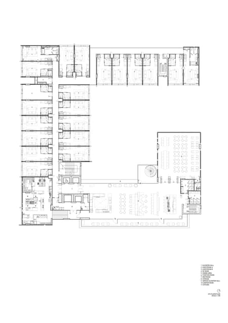
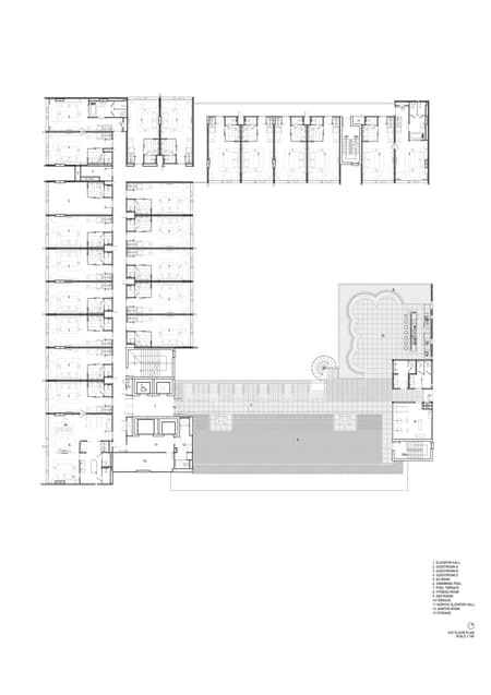
The design intention is to form an enclosing space within the building masses to create a central private courtyard to avoid external interruptions while embracing this area with the green landscape and activity space for groups of families. The reception lobby has been placed at the front to give a warm welcome and filter out the chaos from the outside. Above this spot on the upper floor; is where the Seaview could be appreciated, the architect, therefore, placed the facilities such as the all-day dining restaurant and the main pool right above the lobby to enhance the visual connectivity with the sea. The main pool is connected to a pool bar, creating a space that can appreciate the views of both; the hotel’s landscaped private courtyard and the Seaview on the east side.
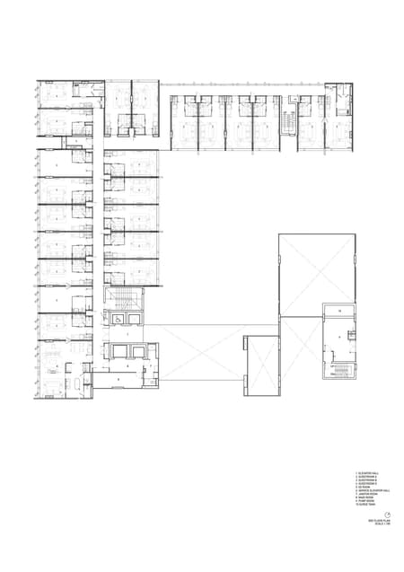
The project is targeted to groups of families and responds to this with a special family room type; where bunkbeds have been incorporated for families with kids. The mood and tone are simple with dark elements and a modern form to enhance the elements of the all-day dining and the main pool on the upper floor. The simplistic color scheme also compliments the greenery in the central courtyard, emphasizing the lush landscape.
The interior concept is inspired by Thai flower patterns which each flower has a different meaning in Thai belief and is placed in different areas; Lotus is the original Thai flower pattern, in the overall area, Lamduan which implies reminder and freshness, in the lobby, Jork which is named for one of Thai dessert, in the all-day dining area and function room, and Si Gleeb (4-petals), the form of 4-petals is derived from “Cham-pa” which is known as the prince of flowers and “Ku-dan” which the fragrance evokes a slightly mysterious but calming mood, both inspire the interior design in the guest room. The curved lines and floral components of these flowers are simplified and applied to the design elements of the interior spaces.
































