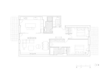
The ‘Arakishvili’ apartment is located in a densely populated central part of Tbilisi. The daily noise of the city and the rhythm of its fast life can be seen and heard from the windows of the apartment. So, the concept and textures of the interior were designed to ensure that the rhythm of the city does not disturb the coziness of the space.
The main living areas, such as the kitchen and living room, have reflective textures of metal, natural wood and white surfaces. The kitchen is separated from the living room by aluminum-stained glass, while the texture of the white painted building blocks on the main wall of the living room provides a dynamic background for the furniture and other decorative items.
Opposite the shared spaces, the bedroom has brown and darker tones. The glass block wall of the bathroom provides a contrast. To give a more intense, dark, feel, walnut wood textures have been used in the bedroom, while the bathroom has the dark, rich textures of natural marble, offset by a geometric ceramic tile floor.
Most of the furniture is individually designed. Nana Zaalishvili's tuff console ‘Element’ stands out in the entrance, as well as a solid oak bench ‘Brick’ in the living room with a solid walnut side table ’Brick’ in the bedroom. Lights are selected from the &Tradition, Luis Poulsen, Flos and Element_ stores. Dining chairs are by TON.
The apartment’s design was created for a young lawyer as a restful haven after a busy work day.























