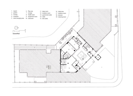
This is an interior design project for a part of the newly constructed 5-story high-rise residential building (approx. 2220 m2) with a roof terrace of approximately 570 m2.
We have been in contact with the client for several years, and this project is the third commission we have received from them. In this project, the building is designed in a way that incorporates the natural landscape of Kiyo into the school. Such a gesture provides indispensable opportunities for children to learn the characteristics as well as the history of the site.
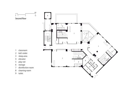
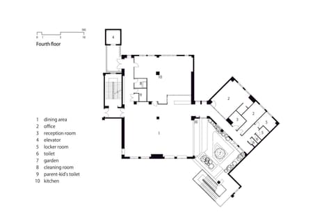
The landscape of Guizhou is unique thanks to the historical formation of the karst landform. It is composed of natural elements such as mountains, rivers, waterfalls, limestone caves, and lakes that are all shaped by the karst land formation. The site offers an interesting contour with full of ups and downs. The interior of the dining room, waiting room, and nursery, where children frequently gather, imitates such a beautiful topography of Kiyo. The terrace has two levels of play areas, created entirely by nets. Steps are also incorporated not only to mirror the outdoor landscape inside but also to let children enjoy climbing up and down while observing the surrounding environment of the creek and the city that embraces them. By doing so, children feel the topography of their own city, Guiyang, in their daily activities. From these daily activities, children improve their physical health and strength incrementally. Furthermore, louvers are installed at locations where children can touch the stalagmites from the karst landform of Guiyang so that children further appreciate the local topography.
By making a place where children feel the topography of Kiyo as part of their daily lives, they then develop a strong sense of connection and attachment to the region. In so doing, children cultivate their willingness to protect and care for the local environment for many more years to come.



















