The new University Children's Hospital lies in Zürich-Lengg, at the foot of a hill known as Burghölzli. It is adjacent to other hospital buildings from several eras and is the largest facility for children and adolescents in Switzerland. It consists of two buildings: the acute-care hospital and the research and teaching facility. The acute-care hospital to the south consists of a three-story concrete frame with intricate wooden infills that blend into the landscape. The interior functions like a town: the medical specialties are neighborhoods with squares and connecting streets. On each of the three floors, a central main street runs past various green courtyards that provide orientation and bring daylight into the building. The patients' rooms on the roof are like individual cottages.
Teaching and research are housed in a white cylindrical building to the north, with an open, five-story atrium in the center. The fields of research are arranged around this core of exchange. Underneath, three lecture halls surrounded by seminar rooms and study areas for students are embedded in the topography of the sloping terrain. The large-scale landscaping includes the planting of over 250 trees. In addition, boulders found underground during construction are placed in and around the buildings, telling of glaciers from the Ice Age. The "inner nature" of the new complex is essential to experiencing the hospital as a place that is conducive to healing. Both buildings have been awarded the platinum certification of building sustainability as specified by the strict guidelines of the SGNI (Swiss Sustainable Building Council).
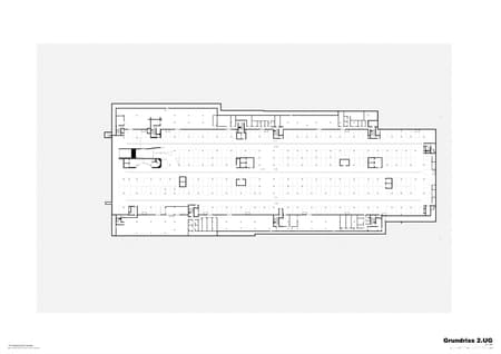
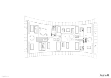
The Acute-Care Hospital - The new Children's Hospital is located in a residential neighborhood dotted with fruit orchards. It is adjacent to the listed building of the University Psychiatric Clinic (PUK), known as the Burghölzli and its entrance, defined by a large open gate, stands directly opposite the entrance to the historic building of 1869. The concave gesture of the façade creates a shared forecourt for both institutions. The gate opens onto a round courtyard planted with trees, through which the entrance is accessed. The restaurant and access to the therapy facilities below with gardens of their own adjoining the entrance. On the other side, the building's main street leads to highly frequented types of treatment such as imaging diagnostics, and the surgical day clinic. This central axis, which widens and narrows along the courtyards, terminates at the emergency room, which can also be accessed directly from the outside.
In the center of the second floor, additional services are located on both sides of the main street, such as the hospital school, the pharmacy and other shared uses. An officescape oriented towards the outside is wrapped like a wreath around this central zone and provides some 600 workspaces for medical and administrative staff. The top floor, the quietest area in the hospital, is reserved for children and adolescents, and inpatients who are staying overnight or longer. Each of the 114 rooms is designed as a wooden cottage with a roof of its own, providing privacy, a view of the green outdoors and enough room for parents to spend the night with their children. There are four centers along the main street in the immediate vicinity of the cottages, where children and adolescents can receive transdisciplinary treatment. The façade of the hospital consists of a three-dimensional, load-bearing concrete structure. It combines the first and second floors. The depth of the façade and the infill, which may be wood, glass, fabric, or vegetation, varies depending on orientation and the activity inside. Lightweight construction materials have been used consistently throughout the building except for the concrete supports and the circulation cores. In this way, departments can increase or decrease in size: the flat building with its distinctive shape thus ensures the interior flexibility that is so crucial for hospitals. The top floor with the inpatient rooms is set back and speaks an architectural language of its own. The rooms are staggered and have rooftops with varying inclinations. The individualized, elementary shape of the cottages underscores the singularity of each and every patient.
The Research and Teaching Facility - The rooms of the cylindrical, white building for research and teaching are organized around a central atrium, encouraging exchange and collaboration among researchers. An agora for teaching and study spreads out under this central space and responds directly to the surrounding landscape. Three lecture halls step into the natural slope of the terrain. Daylight streams in from outside, and thanks to movable walls, the lecture halls, lobby, and café can be reconfigured into one large space. This creates an agora with a stage in the middle for special events and room for an audience of 670 people. A gallery overfed contains open workplaces for students. Adjoining seminar rooms on the same level complete the spaces available for university teaching. Laboratories for research and diagnosis with accompanying offices on the five floors above have an unobstructed view of the surrounding landscape. Open workspaces are arranged around the atrium for the use of doctoral students and laboratory staff. From them, one can see several stories at once as well as the agora below, which is in turn connected to the atrium above through an oculus—a small, round hole in the ceiling.
Embedded in an expensively designed landscape, the research and teaching building is a standalone structure amid a fruit orchard similar to those in many Burghölzli gardens. The building itself speaks an abstract, clearly geometric language and makes use of few materials. Cantilevered balconies with tall railings painted white give the building the appearance of being both weighty and airy at once. The two facilities of the Children's Hospital, though different and distinct, are complementary. Situated on the hill, the circular building for research and teaching guides the gaze towards the lake. The elongated, horizontal shape of the acute-care hospital fits into the flat landscape, providing a view of the mounting rage behind it. The hospital focuses on each patient as an individual, and that means not only the healing process but the well-being of relatives and staff as well. The building for research and teaching highlights exchange and collaboration among scientists and students, which is a prerequisite of forward-looking research.












































