The historic, granite buildings that makeup Minneapolis’ Government District offer a stately yet opaque architectural vision of civic duty, engagement, and transparency. But if the traditional architecture parlante approach to civic design has required stylistic solemnity, the new Minneapolis Public Service building offers a contemporary alternative. “Our approach to the Minneapolis Public Service building aimed to flip the conventions of civic design,” explains Michael Sørensen.
“By deliberately designing for openness and connection, we hoped to help foster a renewed sense of community trust and partnership within the city.” Designed with Minneapolis-based MSR Design and in close partnership with the City of Minneapolis and public advocates, the building is the latest in a new coalition of civic architecture across the United States conceived around the question: “How can our public spaces better reflect the communities they serve?
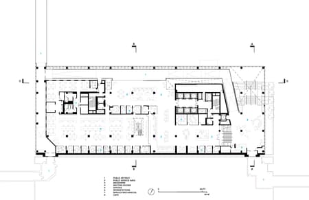
It starts with openness. The soaring glass and aluminum facades that wrap around the Public Service Building are welcoming, bright faces in the quad. Double height pockets are carved from the building, breaking up its massing and giving each of its frontages a distinctive presence. Easy public access also helps to extend an invitation to the public. Bus and light rail stations pass by and drop off next to the new building, offering easy access to it from across the city. A large feature stair in the entry foyer provides an inviting public space that, even if not physically connected to the square outside, is visually linked to life on the street.
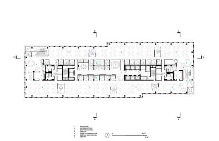
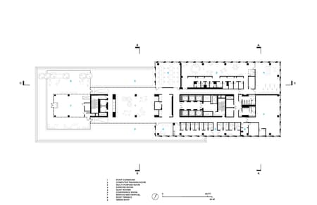
On the building’s second floor, an extra lobby plugs the 370,000 square foot building into the city’s second sidewalk: Minneapolis’ sprawling network of skyways. “You’re really inviting people from the skyway system into this space and being part of this generous public area in the building,” says Sørensen. “This is the one space where the public meets the city…everything converges here.” The themes of transparency and connection continue inside, even as access slowly switches from open-to-all to secured workplace. The office floors – levels 3 through 10 – contain daylit workspaces and enclosed offices, quiet spaces for personal time, improved indoor air quality, and top-floor conference space, café, and terrace.
Once scattered across various buildings in the city, the new building brings together for the first time 10 city departments and over 1,200 employees. And while government offices are not often social spaces, the New Public Service Building offers space to change that. Employees are just as likely to meet in transit as they are in meetings: the communicating stairs in double-height spaces trace their way across the building as they ascent, their landings expanded to serve as additional breakout spaces. In a government building requiring high security, the design still feels open and airy at every turn.
“The best civic spaces are not judged by the amenities they provide or the facilities they contain, but by what they encourage the people they serve to achieve,” says Sørensen. “Transparency of mission and public trust in institutions will be fundamental as the City of Minneapolis begins to craft their new collective, reflective and pluralistic course for the future – we hope the new Public Service Building can be an anchor for this.”








































