Geelong Arts Centre’s $38.5 million redevelopment has opened to the public with a new Ryrie Street entrance set in a striking modern façade providing an exciting new experience for visitors from across the city of Geelong, the region and beyond. As the only state-owned arts centre in Victoria outside of Melbourne, this destination will also serve the needs of a growing creative and cultural community.
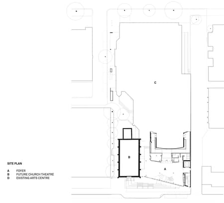
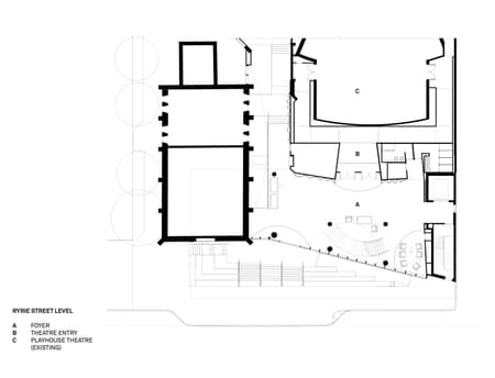
The design seamlessly blends the old and the new, introducing a modern, translucent form that dramatically reveals a once-hidden heritage church. This form sits above a new foyer and forecourt, projecting out into Ryrie Street to establish a strong civic presence and more fluid connection to the surrounding area. Just as importantly, it provides universal access to the Playhouse Theatre and studios – making Geelong Arts Centre a cultural hub that can be enjoyed by everyone.
HASSELL Principal Mark Loughnan says the redevelopment project not only modernises Geelong Arts Centre, but also provides a new architectural identity for the city - “Geelong Arts Centre will not only be a reinvigorated destination, it will also help service the needs of the growing creative and cultural community. Integrating and revealing the church, the design aims to be experienced as a positive, confident and engaging new identity for the performing arts in Geelong,” Mark said.
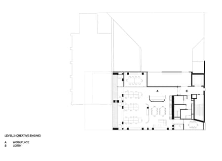
Inside the building, the design carves out a wide range of communal and creative spaces, including two new levels of foyer, a bar area, state-of-the-art rehearsal studios and co-working spaces for arts organisations to work collaboratively. Connected by a grand, curving staircase, the new ground floor and balcony foyer service The Playhouse theatre, as well as offering a unique public space for the local Geelong community.
“Growing up in Geelong and now seeing Geelong Arts Centre’s Ryrie Street building come to fruition has given me an immense amount of pride. It’s not often that you get to work on international projects and use that experience to deliver a project such as this,” Mark said.
Martin Foley MP, Minister for Creative Industries, says the redevelopment ushers in a new era for the Geelong Arts Centre. - “Geelong Arts Centre has long been at the heart of Geelong’s creative community - it was built after passionate locals lobbied and fundraised for a centre to celebrate local talent and bring the best in creativity to the region. Thirty-eight years later, the community has grown and so has Geelong Arts Centre. We’re proud to have supported this latest chapter and the growth of the region as a creative hub,” Minister Foley said. The Geelong Arts Centre Ryrie Street Redevelopment was made possible by support from the Victorian Government.


















