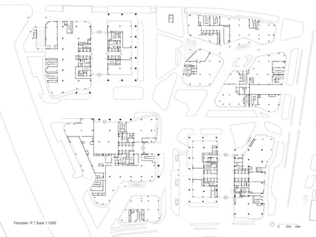
The architects von Gerkan, Marg and Partners (gmp) have completed an office campus in the northern part of Shanghai. It is located in Jiangwan New Town in the Yangpu District, with the commercial quarter of Wujiaochang to the south and the green spaces of the university town to the north. The building complex consists of high-rise slabs arranged in windmill formation and an organically shaped plinth landscape with shops and restaurants, forming the core of the new urban district "The Springs." This area of approximately 90 hectares, which includes office spaces, residential areas, hotels, as well as retail outlets, eateries, and entertainment facilities, has been developed in phases by the real estate company Tishman Speyer since 2011.
The arrangement of the high-rise slabs in repeating patterns creates a high-density center of the new urban area. Two of the six office towers are connected by three-story bridges and are slightly offset from one another. One of the three pairs of buildings is rotated by 90 degrees. Their heights vary between 100 and 133 meters, with the highest point located at the southern end of the site, near "The Axiom" twin towers designed by Büro Ole Scheeren.
A pedestrian bridge designed by gmp connects the areas. The site to the northeast, alongside the office towers, features a four-story ensemble of three organically designed buildings, which are also interconnected by bridges. This creates a transition to the area designed by Henning Larsen to the east. The gmp design spatially and functionally links the surrounding projects of these international architectural firms.
The open urban design with its range of pathways, sightlines, and mix of functions, has created a busy hub in the center of "The Springs" that is throbbing with activity at all times of the day. Restaurants and shops are facing both the street and the interior promenades, complementing the office spaces currently predominantly occupied by the Douyin Group, the Chinese version of TikTok.
A facade structure consisting of horizontal aluminum slats extends along the long sides of the individual office towers, reaching beyond the building edges. The copper-colored sun and glare protection elements give the ensemble a warm appearance. The sky gardens, formed by recesses at the ends of the high-rises, provide natural ventilation to the interiors, and in addition offer special amenities for the offices.



















