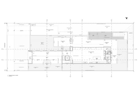
Set on a steep terrain, Casa GM was designed based on a longitudinal layout that enhances the view of the mountains and ensures privacy from future neighboring constructions.
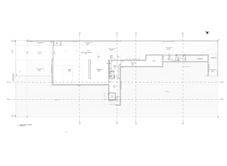
The main access is through a pathway over the water mirror, leading to the social areas located at the back of the lot. The structure closes off towards the higher ground, protecting itself from the setting sun and potential visual interferences, while opening up to the valley, taking advantage of the best orientation and natural ventilation.
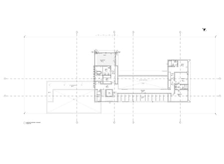
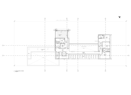
The upper floor houses the bedrooms, organized in two blocks connected by a walkway, all facing the horizon. The social area, on the intermediate level, connects to the balcony and the pool through large glass panels, promoting total integration between the interior and exterior.
Exposed concrete was the central element of the materiality, chosen for its plastic expressiveness and durability against the region's red earth. It is complemented by stonework, flame-finished black granite, and cement-like porcelain tiles, creating an austere and elegant palette.
The lower level concentrates technical and support areas, freeing up the main spaces for social interaction and contemplation of the landscape. The volumetric composition in three levels provides scale and lightness, alternating moments of prominence and integration with the terrain, reaffirming the bond between architecture and nature.




















.jpg?w=450&q=75&dpl=dpl_6NKhQbYoNKZ4YGsW1tKTDHjTc7uH)

