Oxford Properties Group ('Oxford'), Mitsubishi Estate Asia ('MEA'), and Investa's Parkline Place development, a 39-storey commercial tower above the new Gadigal Station in Sydney, have been completed. Foster + Partners worked as part of the team that established an integrated approach to the design of the station and the over-station development, considering them as a single entity. The practice has worked closely with COX Architecture, Aurecon (structural engineering), and CPB Contractors to develop and realize the project.
Gerard Evenden, Head of Studio, Foster + Partners, said: "Parkline Place is one of the best-connected office towers in Sydney, with a brand-new station directly below and enhanced pedestrian infrastructure around the base of the tower. Located between the Central Business District and Midtown Precinct – in the heart of the city – this vibrant new destination provides highly flexible offices alongside an array of social spaces, shops, cafes, and restaurants."
Muir Livingstone, Partner, Foster + Partners, added: "We are delighted to see Parkline Place opening its doors. It is the new home of our Sydney office, and we are looking forward to working in such a dynamic location."
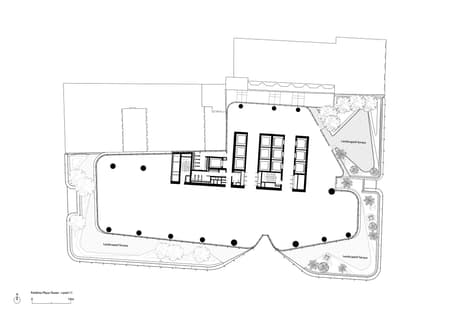
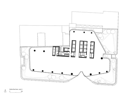
The station entry box acts as the foundation to the over station development above. The new tower is articulated as three distinctive vertical forms with curved corner glazing. A recess in the facade continues through the full height of the tower and is centered on the station's Park Street entrance, creating a direct connection between these two interconnected parts of the scheme.
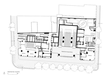
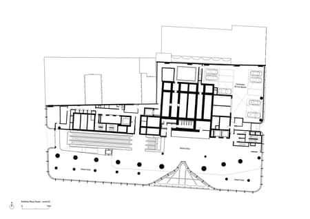
Gadigal Station's Park Street entrance is celebrated with a glass veil, which animates the street and allows daylight to flood the station concourse throughout the day. Meanwhile, Parkline Place's separate entrance lobby on Pitt Street has a strong vertical emphasis and a triple height volume that leads to the commercial lobby space.
The tower's massing has been carefully crafted to accentuate the building's functions. The large flexible floorplate has two banks of lifts in a central core, allowing for continuous uninterrupted views of the surrounding parks and Sydney Harbour. The office spaces have been designed to allow interconnecting stairs, social hubs, breakout spaces, client meeting rooms and interaction spaces enriching the workspace.
The primary elevation of the tower faces south, with very little solar exposure, and has minimal vertical sunshades to deal with low-angle early morning and evening sun. On the east and west elevations, the glazed area is substantially reduced using a raised sill to minimize heat gain Solar exposure is further reduced by projecting shades that help manage the high sun and maximize views to the parks and beyond. The building is rated WELL Platinum and Greenstar 6-Star (Design and As Built v1.3).
A podium around the base of the development follows the building heights of the two heritage listed buildings adjacent to the site on Pitt Street and Castlereagh Street. Furthermore, the use of a sandstone and bronze links the development to other surrounding heritage buildings in the area.
The station structure effectively acted as the foundation for the development, simplifying construction and making it easier and more economical to build. The return on investment from the over-station development also subsidized costs for the project, creating an economically sustainable model for this public transport infrastructure project. The design team was able to align the structure and optimize building services, prioritizing passenger circulation and creating separate entrances for both the station and the commercial development above.































