With an enrollment of 1,300 students from the first through ninth grade, the “Angela Merkel” School ranks as one of the largest educational institutions in the country and is among the very few, if not the first, educational buildings in Albania to be fully self-sufficient in energy. Positioned along a primary axis of the city’s urban circulation system, it sits at the heart of a dense educational hub, flanked by a kindergarten and another school.
The architectural concept focuses on creating spaces that foster interaction among student groups of varying sizes and interests, offering moments of connection within a busy and vibrant environment. The design builds on the site’s existing qualities—such as the small yet lively courtyard facing the boulevard—while introducing new spatial intersections and gathering points that enrich both communal and individual experiences.
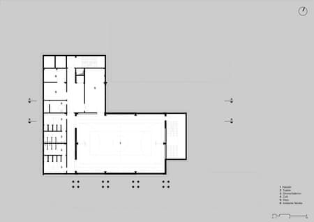
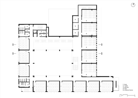
By setting the building back from the boulevard, a buffer zone is formed, serving as a recreational space for both educational purposes and extracurricular community activities. The educational and administrative functions are organized into distinct building volumes that frame an elevated inner courtyard. Circulation spaces wrap around this courtyard, with translucent glass block walls providing a balance of openness and privacy, making it an inviting place for brief social retreats.
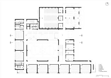
A dynamic central staircase doubles as an open auditorium, encouraging daily social interaction and hosting occasional group events. This feature, illuminated by the courtyard’s southern exposure, is the primary vertical circulation element, connecting all floors. Beneath the courtyard, the sports hall—visible through a translucent volume rising to the ground floor—becomes an integral, highly visible part of the building.
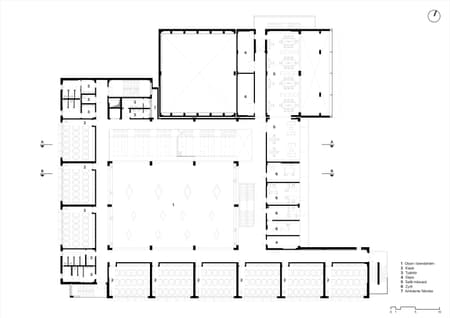
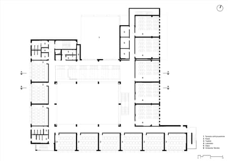
The ground floor houses the main communal facilities, including a 240-seat auditorium and a spacious library that opens to the front yard. The double-height library and teachers’ room visually connect across levels, fostering a sense of transparency and openness. Primary school classrooms are distributed along the western and southern corridors, while the eastern corridor links specialized classrooms, a health clinic, and the psychologists’ offices. From the first floor, students have direct access to the open courtyard above the sports hall.
Energy efficiency is embedded in every aspect of the building, from passive design strategies to advanced technologies that mark a first for school investments in Albania. Key features include the inner courtyard framed by circulation corridors, integrated shading elements, buffer zones at entrances and within building blocks, program orientation optimized to the sun path, and a carefully selected façade system with high-performance insulation. Underfloor heating further minimizes energy loss. These measures, combined with an extensive array of photovoltaic panels covering 1,250 m², make this the first school in Albania producing more electricity than it consumes.
The school occupies a 2,820 m² footprint within a 5,175 m² site, with a total construction area of 10,107 m². This project is part of the Albanian Government’s Reconstruction Program after the 2019 earthquake damages and is funded by the KfW Investment Bank in partnership with the Albanian Development Fund (ADF), which served as the implementing agency.



































