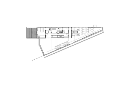
Pinati occupies one of the townhouses built in the 1930s at the corner of Armando Penteado and Alagoas streets. The obtuse angle of the corner causes the lot to fan out, and it is from its vertex and the two faces of this triangle that the project unfolds. The house had previously been occupied by an ice cream shop that completely reconfigured its interior. From the original structure, only the façade and the wooden roof structure remained. A new metal reinforcement structure was added, all internal walls were demolished, and a mezzanine was created. The project builds upon the modifications, demolitions, and structural additions that have shaped the house over time. Pinati represents the third stage of the building’s transformation, defined by an additive approach. It is a structure dedicated to kitchen, bathrooms, and storage, clearly distinct from its immediate context—it is a building within a building. Pinati occupies the existing mezzanine, running parallel to one side of the lot, extending from the vertex to the street, measuring 30 meters in length and 6 meters in width. This configuration results in the public areas: the veranda, the main hall, the restroom, and the upper hall.



























