The newest addition to Mungo Park Theatre breathes life into the city center of Allerød and will be the face of the theatre to the outside world. The new, square theatre building has a dynamic façade that creates visibility around the theatre’s activities. The façade is wooden and organized into modules, which gives the building a warm and welcoming atmosphere.
The calm exterior of the building excites curiosity, allowing the inside of the theatre to remain secret until one enters the house. In the façade, vertical strips of light glow in the dark, as if the theatre’s life is flowing out through cracks in the building. The façade lights make the house buzz with activity and create interaction between the theatre, its immediate surroundings, and the rest of the city. The façade is a communicative surface where posters and banners let locals and visitors know what is currently happening in the theatre and what is to come.
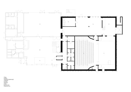
Magical Darkness. Inside the building, the theatre hall is one large, elegant room where the audience can wholeheartedly immerse themselves in the performance’s magic. The room can be organized and illuminated – or completely blacked out – as needed, and all technical installations are tucked away in the darkness above the ceiling. The theatre is both a cultural center and a local social hub where citizens can meet and talk about the performance or discover what performances and events the theatre holds. In the design, we have prioritized flexibility so that the room can be adapted to the needs of different performances and events.
Life Cycle Analysis. The building was completed before Life Cycle Analysis became obligatory; however, we did select the façade materials based on Life Cycle Analysis (LCA) and Life Cycle Cost (LCC) calculations to reduce the building’s environmental footprint. This means that the façade consists of materials with a long life that are easy to maintain and recycle.










