In the heart of Werksviertel-Mitte, Munich, close to the city center, the Wacker House creates a vibrant and flexible workplace in a unified building, capable of offering an exciting blend of offices, culture, entertainment, and shops. Expressed through a transparent building with a strong connection between the inside and outside, the Wacker House connects with the surrounding community in a permeable, lively, and engaging fashion. The architecture manifests itself as a large unifying grid structure, with a distinct curvy signature, inspired by the former rail tracks of the Werksviertel, that opens towards a common pedestrian zone in the area.
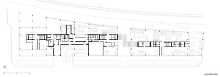
Energetic City Space - To integrate the surrounding neighborhood, the ground level is abundant with retail opportunities, flexible office spaces, and co-working facilities, all placed in a double-height space with a public and open arcade in the centre of the building. Transparent and visible entrances to all sides amplify the building's ability to create a connection between its varied content and the surrounding city space, helping the building to become a new destination in the city.
The upper part of the building consists of four office floors around a zig-zag configuration, where open and flexible office landscapes form inner loops around a series of external green courtyards at various heights. Internally, three cores create connectivity between the office floors and towards the base of the building.
The courtyards contribute both in bringing the daylight into the large floor areas of the building and maximising microclimatic qualities throughout the entire massing of the building, while contributing positively to drastically reducing the heat island effect. The overall building grid is made by prefabricated elements internally and in facades, both to reduce building time and construction cost, and to add passive shading through a relief-like façade structure to the large window sections. Sustainable materials, like recycled concrete and aluminum, are implemented in the building.

























































