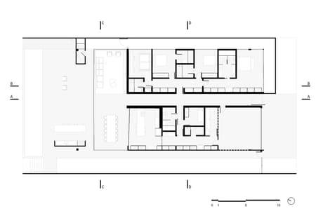
The house is located on an urban plot with a slight slope from the street towards the back of the lot. The entire program was distributed on a single floor that is leveled with the public sidewalk, which generated an intentional outcrop of the pool at the back of the house. The pool occupies almost the entire boundary between the house and the backyard. It was designed so that one of the residents, who is a swimming teacher, could teach at home.
The bedrooms open onto an uncovered perimeter garden on one side of the plot, while the services are located on the other side, facing the mandatory retreat area. The social area (living room, dining room and balcony) faces the backyard and occupies a transversal portion of the plan. A 2-meter wide corridor directly connects the front access to the social area. It separates the bedrooms from the service area and it has 6 linear zenith openings for natural light and ventilation.
The roof structure of the house is formed by 8 exposed concrete beams cast in place, with a length of 30.5 meters and spaced 2.10 meters apart. The beams are interspersed with exposed beams of the slab-panel type. A second mesh of perpendicular beams follows the internal divisions of the rooms and “ties together” the whole structure. At some specific points (access gallery, bathrooms, circulations and internal sections of the room and balcony) the placement of the slab-panel joists is interrupted by linear skylights for natural lighting and/or ventilation. Most of the luminaires are built into these skylights.

























