A humble "build to rent" building of 37 dwellings in L'Hospitalet de Llobregat, located in a peripheral area, in an urban fabric in constant transformation from an industrial to a residential area and with limited economic resources. The design choices were driven by the search for a solution that takes advantage of the conditions of the site in relation to orientation, sunlight and comfort of its occupants, while being rational and economical, easy to maintain and flexible to future adaptations.
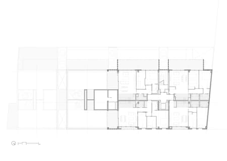
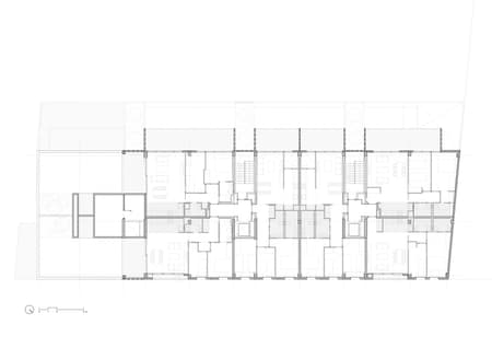
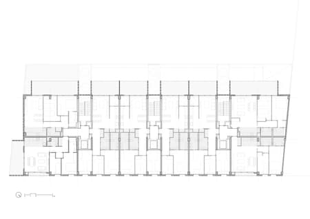
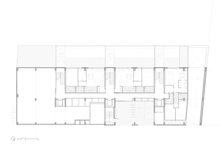
The building consists of a basement, ground floor and five upper levels, staggered at the top to create terraces with suitable orientations in the attics, in a strategy of making the most of the roofs as a privileged part of the dwellings. The apartments are mostly pass-through, allowing cross ventilation between opposite facades. The day areas benefit from the south-west orientation, enhanced by generous terraces as a projection and an extension of the living rooms, which are oriented towards the small public park in the inner yard. The strategy of centralizing the mechanical installations for the dwellings and the common spaces improves maintenance tasks and optimizes their efficiency.
The façade is composed of a durable, efficient and low-maintenance construction solution, while using a material typical of the neighboring industrial buildings. The masonry is the main element, with which reliefs, textures, rigging and lattices are created, introducing color as a simple complementary element to make the whole complex more friendly and warm. The façade facing Leonardo da Vinci Street, which is less exposed to sunlight and where most of the rooms are bedrooms, follows a rhythm of regular openings protected by external shutters, allowing privacy and interior illumination to be controlled, while the south-west façade is permeable, with large balconies for the living rooms and common areas and retractable sun protection awnings that are regulated both individually and centrally.























