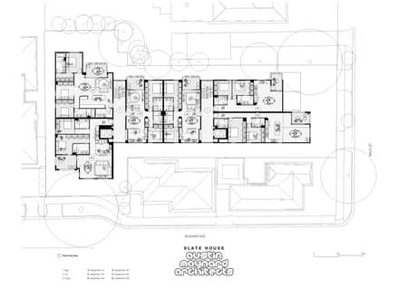
Slate House is a new three-level, high-performing, high-end apartment building of 14 spacious homes, in the bayside suburb of Brighton in Melbourne. Responding to the developer's brief to produce beautiful, thoughtful, refined, and efficient homes, we focused on aesthetics, context, and sustainability. Achieving an outstanding NatHERS rating of 8.2 stars, Slate House is Brighton’s first fossil-fuel-free multi-residential apartment building.
The design of Slate House is the careful articulation of built form to fit gently within the street’s character; sensitive to the size and presence of other houses and to its direct neighbor Cardinia House, a significant heritage home. We looked to Architecture that spoke of scale, texture, and materiality to inform the design and aimed for the building to appear domestic, small, and loveable. The intention was a synthesis of the prevailing rich history and domestic context, to show there was an alternative to the area’s prevalent, overbearing monolithic developments.
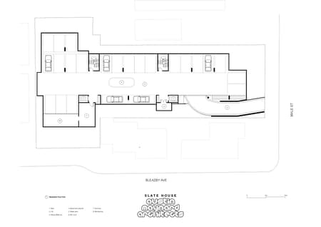
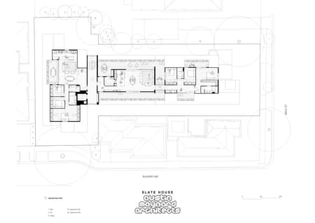
Slate House is sited on a T shape block, allowing for two frontages, each exhibiting a different identity. The main entrance on Bleazby Ave is pedestrian, befitting of the quiet and leafy cul-de-sac. The Male Street frontage, a busier and wider vehicle thoroughfare, incorporates the entry to basement parking yet has the appearance of a much more private residence, relative in scale to nearby Victorian villas and Edwardian homesteads.
In the early design stages, we took an audit of buildings in the local vicinity which revealed a dominance of slate, terracotta, and brick and white masonry. By utilizing these three distinct materials in the construction we were able to break down a large building into smaller volumes. Rather than appearing as one form, it poses questions of singular buildings. The materiality is simple, honest, and beautiful, and requires minimal maintenance. Slate House is designed to endure.





























